Jedną ściankę wyburzyliśmy, a dwie dobudowaliśmy, oddzielając (ze względów estetycznych) miejsce, w którym znajduje się sedes oraz przestrzeń przeznaczoną pod prysznic.
Projekt ma charakter loftowy. Białe ściany kontrastują z czarną ceramiką. Na podłodze płytki zostały połączone z drewnem, dzięki czemu pomieszczenie jest ciepłe i przytulne. Łazienka tworzy otwartą przestrzeń z sypialnią.
|
| Łazienkę za 5 tys. zł projektujemy dla tego domu: Urządzamy dom w trzech wariantach cenowych |
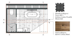
Po lewej stronie została umieszczona biała umywalka nablatowa Kerasan Inka z serii Aqua Libre o wymiarach 40 × 60 cm umocowana na dwóch oddzielnie kupowanych blatach z podwieszaną szafką podumywalkową z serii Inka. Naprzeciwko umywalki zamontowano owalną wannę Polysan Viva o wym. 175 × 80 cm.
Po lewej stronie, w rogu łazienki znajduje się prysznic, do którego prowadzą drzwi natryskowe Sanplast DJ2/Free- 90. Brodzik z odpływem w posadzce Kessel System 125. Drugą wnękę zajmuje podwieszany sedes Roca Meridian-N z deską wolnoopadającą Meridian-N.
W tej wersji łazienki do ceramiki dobrana została prosta, elegancka armatura hiszpańskiej firmy Tres z serii Max-Tres: smukła bateria umywalkowa, wannowa trzyotworowa, montowana na dobudowanym do wanny cokole i zestaw natryskowy.
- Jak długo trwa układanie płytek i ile to kosztuje?
- Jak czyścić odpływ liniowy - poradnik praktyczny
- Najlepsze światło do łazienki. Jedna lampa nie wystarczy!
- Jak przykleić lustro na ścianie?
Charakteru pomieszczeniu dodaje drewniana podłoga z układanych poprzecznie, litych, dębowych desek Century Black. Takie ich ułożenie sprawia, że pomieszczenie wydaje się większe niż jest w rzeczywistości. Zabudowana wanna została obłożona czarną mozaiką o wysokim połysku Tower Hill 1 z kolekcji London Picadily. Kolekcję tę zaprojektował dla firmy Tubądzin słynny projektant Maciej Zień.
Mozaikowe wstawki możemy znaleźć także nad umywalką i przy prysznicu. Kolejnym elementem z tej serii jest dekor Big Ben, ułożony naprzeciwko wejścia do łazienki, otoczony białymi płytami Oxford White, które znajdują się także we wnęce prysznicowej.
Nad wanną ułożono płytkę ścienną Kensington 1.
Nad umywalką powieszono poziomo prostokątne lustro Minde 120 × 40 cm. Na suficie zamontowano oświetlenie punktowe Ravak H2O Profi (3 halogeny), a także dwie lampy wiszące w szklanej obudowie Bulb SR1 firmy And Tradition umieszczone nad blatem umywalkowym.
| KOSZTORYS WYKOŃCZENIA ŁAZIENKI W WARIANCIE STANDARDOWYM | ||||
| SUFITY, POSADZKI, ŚCIANY | ||||
| Rodzaj materiału | Zużycie | Cena [zł/m2] | Cena [zł] | |
| Podłoga drewniana | Deski podłogowe dębowe Century black, Slovpol Wood | 6,5 m2 | 225 zł/m2 | 1462,5 |
| Ściany z płytek ceramicznych | Płytka ścienna Oxford White, 598 x 298 mm, kolekcja London Picadilly Maciej Zień, Tubądzin | 10 m2 | 124,07 zł/m2 | 1240,7 |
| Płytka ścienna Kensington 1, 222 x 73 mm, kolekcja London Picadilly Maciej Zień, Tubądzin | 2,5 m2 | 144,65 zł/m2 | 361,63 | |
| Dekor ścienny 6-elementowy Big Ben 1, kolekcja London Picadilly Maciej Zień, Tubądzin | 1 szt. | 459,34 zł/szt. | 459,34 | |
| Mozaika Notting Hill 1, kolekcja London Picadilly Maciej Zień, Tubądzin | 72 szt. | 26,99 zł/szt. | 1943,28 | |
| WYPOSAŻENIE | ||||
| Rodzaj i model | Ilość [szt.] | Cena [zł/szt.] | Cena [zł] | |
| Ceramika | Pojedyńcza umywalka INKA Agua Libre półblatowa 60 x 40 x 35,5 cm, czarny mat, Kerasan | 1 | 1127 | 1127 |
| Blat ceramiczny do umywalki INKA Agua Libre, 12 x 35,5 cm, biały mat, Kerasan | 1 | 436 | 436 | |
| Blat ceramiczny do umywalki INKA Agua Libre, 52 x 35,5 cm, biały mat, Kerasan | 1 | 743 | 743 | |
| Miska WC podwieszana MERIDIAN-N + stelaż podtynkowy PRO +, Roca | 1 | 890 | 890 | |
| Deska do WC wolnoopadająca MERIDIAN-N, Roca | 1 | 353 | 353 | |
| Wanna owalna Viva O 175 x 80 cm, Polysan | 1 | 1602 | 1602 | |
| Prysznic | Kabina natryskowa DJ2/FREE-90, Sanplast | 1 | 1221 | 1221 |
| Zestaw odpływowy | System 125, Kessel | 1 | 395 | 395 |
| Armatura - zestaw prysznicowy | Ramię do głowicy natryskowej do mocowania na ścianie 300 mm, Tres | 1 | 198 | 198 |
| Głowica natryskowa LEX-225, śr. 225 mm, Tres | 1 | 223 | 223 | |
| Słuchawka antical TUB, Tres | 1 | 93 | 93 | |
| Uchwyt do słuchawki Max-Tres, Tres | 1 | 140 | 140 | |
| Wąż Satin 1,70 m, Tres | 1 | 61 | 61 | |
| Bateria podtynkowa wannowo natryskowa Max-Tres, Tres | 1 | 513 | 513 | |
| Armatura | Bateria umywalkowa Max-Tres, Tres | 1 | 594 | 594 |
| Bateria wannowa trzyotworowa Max-Tres, Tres | 1 | 1687 | 1687 | |
| Meble łazienkowe | Szafka podumywalkowa Inka Agua Libre, szer. 120 cm, Kerasan | 1 | 1735 | 1735 |
| Oświetlenie | Oświetlenie punktowe ruchome H2O Profi , biało-szare CL22 12V, Ravak | 3 | 160 | 480 |
| Lampa wisząca Bulb SR1, And Tradition | 2 | 490,77 9 | 81,54 | |
| Akcesoria | Lustro Minde, 120 x 40 cm, Ikea | 1 | 99,99 | 99,99 |
Łączny koszt 19 994,98 |
||||
|
|
|
|
|
|
Projekt domu udostępniła firma Domoforma Modern Living www.domoforma.pl.
Projekt wnętrza: Małgorzata Wojciuk, www.anmadesign.pl
Wizualizacje: Łukasz Boniewski, www.gammaprime.com