Urządzamy dom w trzech wariantach cenowych

Urządzamy dom w trzech wariantach cenowych

Urządzamy dom w surowym stanie o powierzchni użytkowej 178 m2. Każde pomieszczenie w tym domu zostanie zaprojektowane w trzech wariantach cenowych: ekonomicznym, standardowym i ekskluzywnym.

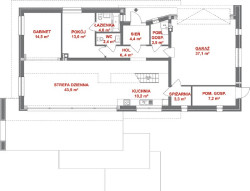
Budynek składa się ze strefy mieszkalnej przykrytej prostym dwuspadowym dachem, do której przylega wykończona cegłą część gospodarcza z garażem i pomieszczeniami technicznymi. Trzecim ważnym elementem jest przestronny taras.

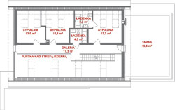
Z sieni domu wchodzi się do halu prowadzącego do strefy dziennej (salon, jadalnia, kuchnia, gabinet) i pokoju gościnnego. Prowadzące na galerię /wykanczanie/schody umożliwiają komunikację z pomieszczeniami znajdującymi się na piętrze, a więc w sumie trzema sypialniami, dwoma łazienkami i garderobą. Z galerii można także dostać się na taras, umieszczony na dachu garażu.

Dom ma bardzo nowoczesną formę, jest jasny i przestrzenny. Został zaprojektowany z myślą o 4-osobowej rodzinie, jednak "zmieści" się w nim także więcej osób. Jego dokładną wizualizację wraz z rzutami pięter przedstawiają zamieszczone rysunki.

Rzut parteru Rzut piętra

Zaczynamy od zaprojektowania i wykonania znajdującej się na piętrze łazienki, przylegającej do największej sypialni. W projekcie są uwzględnione: materiały wykończeniowe, ceramika, armatura, meble oraz inne niezbędne elementy wyposażenia, jak choćby oświetlenie, lustra itp.

Pomieszczenie ma około 5,2 m2 w wersji projektowej, jednak zastosujemy zabieg, dzięki któremu łazienka nieco się powiększy.

Projekt domu udostępniła firma Domoforma Modern Living www.domoforma.pl.

Projekt wnętrza: Małgorzata Wojciuk, www.anmadesign.pl

Wizualizacje: Łukasz Boniewski, www.gammaprime.com

Komentarze

Może Cię zainteresować
Koszty budowy podjazdu z betonu
Koszty budowy podjazdu z betonu
Najnowsze artykuły
Czytaj tak, jak lubisz
W wersji cyfrowej lub papierowej
Moduł czytaj tak jak lubisz