SitaCompact nasadka balkonowa z sitem płaskim do okładzin klejonych i niskiej zabudowy warstw balkonowych

SitaCompact nasadka balkonowa z sitem płaskim do okładzin klejonych i niskiej zabudowy warstw balkonowych

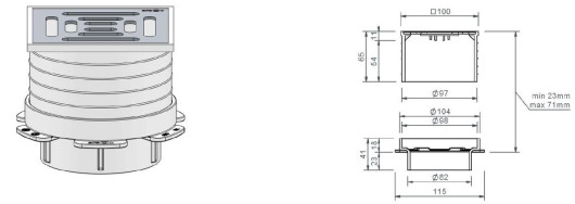
Nasadka balkonowa SitaCompact przeznaczona jest do niskiej zabudowy warstw. Łatwe skracanie korpusu nasadki balkonowej pozwala na stosowanie nasadki wpustu na powierzchniach balkonowych o wysokości warstw już od 23 mm.

Łatwy montaż. Do balkonów o niskiej zabudowie warstw.

Możliwość dopasowania wysokości nasadki SitaCompact do żądanej zabudowy. Nasadka balkonowa SitaCompact przeznaczona jest do niskiej zabudowy warstw. Łatwe skracanie korpusu nasadki balkonowej pozwala na stosowanie nasadki wpustu na powierzchniach balkonowych o wysokości warstw już od 23 mm.

Dzięki dolnej perforacji nasadki balkonowej umożliwiony jest odbiór wody oraz skroplin z wszystkich warstw balkonowych.

SitaCompact nasadka balkonowa z sitem płaskim z ABS, kratką z aluminium do odwadniania liniowego pionowego i możliwości podłączenia rur o średnicach DN50 o DN70.

SitaCompact nasadka balkonowa
z sitem płaskim z ABS, kratką z aluminium do odwadniania liniowego pionowego i możliwości podłączenia rur o średnicach DN50 o DN70. Do odprowadzenia opadu z warstwy użytkowej balkonu oraz skroplin z warstwy izolacji. Możliwość skracania do żądanej wysokości.

SitaCompact nasadka balkonowa z sitem płaskim z ABS, kratką ze stali nierdzewnej.

SitaCompact nasadka balkonowa
z sitem płaskim z ABS, kratką ze stali nierdzewnej. Do odprowadzenia opadu z warstwy użytkowej balkonu oraz skroplin z warstwy izolacji. Możliwość skracania do żądanej wysokości.

Przykład zabudowy

SitaCompact z SitaCompact nasadka balkonowa z sitem płaskim w niewentylowanej zabudowie z płytami na warstwie klejącej.

Przykład zabudowy: SitaCompact z SitaCompact nasadka balkonowa z sitem płaskim w niewentylowanej zabudowie z płytami na warstwie klejącej.

SitaCompact nasadka balkonowa z sitem płaskim składa się z:
1.1 SitaCompact sito płaskie
1.2 SitaCompact kratka
1.3 SitaCompact nasadka balkonowa
2 SitaCompact wpust prosty
3 SitaCompact Korpus izolacyjny

Firma powiązana: SITA Bauelemente GmbH

Komentarze

Najnowsze artykuły
Czytaj tak, jak lubisz
W wersji cyfrowej lub papierowej
Moduł czytaj tak jak lubisz