Jak doprowadzić powietrze do pompy ciepła?

Jak doprowadzić powietrze do pompy ciepła?

Jak najlepiej doprowadzić powietrze do pompy ciepła? Czy kolektor poziomy można zastosować pod budynkiem w warstwie piasku stabilizowanego pod posadzką parteru? Doprowadzenie powietrza z czerpni tuż przy budynku. 

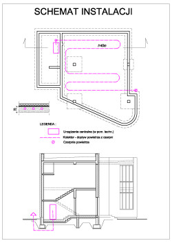
Schemat instalacji przesłany przez pytającego Odpowiedź eksperta:

Ze schematu wynika że "kolektor" to jest rura doprowadzająca powietrze do "urządzenia centralnego". Czyli nie jest to poziomy kolektor gruntowy pompy ciepła.

Taki sposób doprowadzenia powietrza jest zwykle stosowany dla doprowadzenia powietrza, potrzebnego do spalania, do kominka lub kotłowni.

Jeśli miałoby być to doprowadzenie powietrza do pompy ciepła typu powietrze-woda dla ogrzewania budynku to obawiam się, że będzie go znacznie za mało. Przepływ powietrza przez wentylator jednostki zewnętrznej to 6000 m3/h. Poza tym wygodniej/lepiej i prawidłowo jest takie urządzenie zamontować na zewnątrz budynku.

Jeśli powietrze ma być dostarczone do powietrznej pompy ciepła dla CWU to maksymalna długość kanału przy jego średnicy wewnętrznej =200 mm to 20 m linii prostej. Każda kratka, kolanko, redukcja powodują zmniejszenie tej długości. Na schemacie jest 40 m i dużo oporów miejscowych.

Rafał Magiera
Sofath / De Dietrich

Komentarze

Najnowsze artykuły
Czytaj tak, jak lubisz
W wersji cyfrowej lub papierowej
Moduł czytaj tak jak lubisz