Adaptacja poddasza tylko z architektem

Adaptacja poddasza tylko z architektem

Adaptacja poddasza to sposób na powiększenie użytecznej przestrzeni w domu bez jego rozbudowy i w większości przypadków od rozbudowy znacznie tańszy. Jednak przystosowanie strychu na cele mieszkalne to złożone przedsięwzięcie, więc trzeba się za nie zabrać w sposób systematyczny i z dobrze obmyślonym planem.

Gdy potrzebujemy większej niż dotychczas powierzchni mieszkalnej, mamy do wyboru:

  • rozbudowę domu;
  • zmianę domu na większy;
  • adaptację strychu lub piwnicy.

Rozwiązanie pierwsze jest często niemożliwe ze względu na wielkość działki lub ograniczenia wynikające z Miejscowego Planu Zagospodarowania Przestrzennego. Drugie zaś wiąże się z szeregiem trudności finansowych i organizacyjnych. Adaptacja strychu (czasem też piwnicy) na pomieszczenia mieszkalne często jest więc najrozsądniejszy wyborem, bo w sprzyjających warunkach zakres prac może być stosunkowo niewielki, nie zmienia się też znacząco wygląd zewnętrzny budynku.

Jednak tej decyzji nie powinniśmy podejmować pochopnie, bo nieużytkowy strych też ma zalety:

  • jest przestrzenią gospodarczą, w której można przechowywać rzeczy używane rzadko lub sezonowo;
  • stanowi strefę buforową, ograniczającą nagrzewanie się i wychładzanie pomieszczeń na niższej kondygnacji;
  • umożliwia szybkie wykrycie i naprawę nieszczelności dachu;
  • stwarza bardzo dobre warunki wentylacji elementów więźby dachowej, co sprzyja jej trwałości.

Projekt poddasza - plan podziału

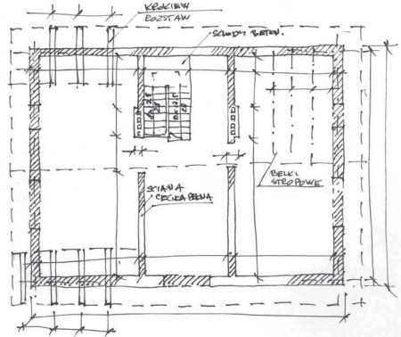
Adaptację poddaszapowinniśmy rozpocząć od inwentaryzacji stanu istniejącego. To przede wszystkim pomiar przestrzeni pod dachem i sporządzenie szkiców w skali 1:100, a jeszcze lepiej 1:50. Niezbędne jest zaznaczenie wysokości pomieszczeń i lokalizacji takich elementów, jak słupy podtrzymujące więźbę - inaczej mówiąc wszystkiego, co utrudnia swobodny podział i zagospodarowanie przestrzeni.

Sprawdzenie stanu więźby oraz nośności stropu to zadanie dla fachowców i na to przyjdzie czas później. Na razie sporządzenie rysunków pomoże nam odpowiedzieć na pytanie czy w przestrzeni, którą dysponujemy w ogóle da się wygospodarować satysfakcjonujące nas, odpowiednio duże i ustawne pomieszczenia. Czy to ma być np. dodatkowy, tylko sporadycznie użytkowany, pokój dla gości, czy myślimy o drugim samodzielnym mieszkaniu?

Pierwszy krok w adaptacji poddasza to inwentaryzacja stanu istniejącego. Zacznijmy od sporządzenia planu strychu, zaznaczając jego wymiary i wszystkie elementy utrudniające przyszły podział

W tym momencie może dojść do brutalnego zderzenia tego, co można uzyskać, z tym, co uzyskać byśmy chcieli. Możliwości adaptacji zależą głównie tego, jaki jest kształt i konstrukcja dachu, a nie powierzchnia poddasza mierzona po podłodze.

Wynika to głównie z faktu, że do pełnego wykorzystania nadaje się część pomieszczenia o wysokości przynajmniej 1,9 m (tzw. wysokość stania), a do ustawienia sprzętów i mebli przy ścianach potrzebna jest wysokość 1,2-1,5 m. Efektywnemu wykorzystaniu poddasza sprzyja:

  • prosty kształt dachu. Najlepsze są dachy dwuspadowe;
  • znaczny kąt nachylenia połaci (powyżej 30°), bo dzięki temu wysokość pomieszczenia szybko rośnie w miarę oddalania się od ściany;
  • wysoka ścianka kolankowa (ponad 1 m);
  • duża rozpiętość dachu (ponad 8 m);
  • brak słupów lub ścian nośnych.
Większość miejsca pod dachem czterospadowym zajmują skosy, których nie można w pełni wykorzystać.
Większość miejsca pod dachem czterospadowym zajmują skosy, których nie można w pełni wykorzystać. Jak widać, kształt dachu jest nie mniej ważny niż, jego wysokość

 

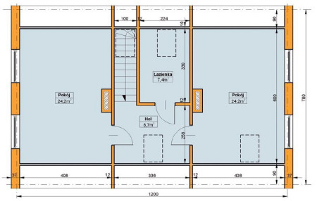
Bardzo duże znaczenie ma też umiejscowienie schodów. Najlepiej, jeśli biegną w przybliżeniu równolegle do połaci dachu. Wówczas można wykorzystać przestrzeń o niewielkiej wysokości blisko okapu. Dobrze też, jeśli schody są blisko środka, a nie któregoś z krańców budynku. Dzięki temu możemy zaplanować wygodne wysokie pomieszczenia po obu stronach schodów, nie tracąc najcenniejszego miejsca pod kalenicą na komunikację.

Bardzo funkcjonalny podział poddasza na dwa duże pokoje oraz centralnie umieszczony hol i łazienkę. Oba pokoje są dobrze doświetlone oknami w ścianach szczytowych i mają znaczną powierzchnię o pełnej wysokości bez skosów

Wysokość pomieszczeń

Na poddaszach minimalna wymagana wysokość pomieszczeń mieszkalnych to 2,2 m. W pokojach ze skosami liczy się ją przy tym jako średnią wysokość, poczynając od 1,9 m. Dlaczego akurat od 1,9 m? Bo w myśl prawa części poniżej tej wysokości nie uznaje się za odpowiadającą przeznaczeniu pomieszczenia.

Oczywiście w praktyce nawet przestrzeń przy ścianie o wysokości 1 m da się wykorzystać, a 1,9 m to już "wysokość stania" - do takiej ściany można podejść, nie uderzając głową o sufit i można przy niej ustawić większość mebli. Dużo zależy też od spadku dachu, bo przy bardziej stromym, w miarę oddalania się od ściany szybko przybywa przestrzeni nad głową. Możliwości zagospodarowania części pomieszczeń o obniżonej wysokości pokazano na rysunkach.

Pod ścianką o odpowiedniej wysokości zmieszczą się:

a) 0,7 m - sporadycznie używane przedmioty; b) 1 m - łóżko;
c) 1,5 m - biurko, przy którym można swobodnie stanąć; d) 2 m - większość mebli;

Jarosław Antkiewicz

Jarosław Antkiewicz
Jarosław Antkiewicz
Człowiek wielu zawodów, instalator z powołania i życiowej pasji. Od kilkunastu lat związany z miesięcznikiem i portalem „Budujemy Dom”. W swojej pracy najbardziej lubi znajdywać proste i praktyczne rozwiązania skomplikowanych problemów. W szczególności propaguje racjonalne podejście do zużycia energii oraz zdrowy rozsądek we wszystkich tematach związanych z budownictwem. W wolnych chwilach, o ile nie udoskonala czegoś we własnym domu i jego otoczeniu, uwielbia gotować albo przywracać świetność klasycznym rowerom.
Komentarze

KamilaMarek
22-01-2016 18:37
Cytat Z tą inwentaryzacją zrobioną samodzielnie , to chyba najgłupsza porada jaką można było napisać. Po pierwsze pomiary i tak się nie będą zgadzać, a architekt będzie musiał zrobić to jeszcze raz. Przy okazji obejrzy więźbę ...
bajbaga
13-10-2015 15:34
Zmienili PB - architekci wq...ni na maksa.
Gość arch.
13-10-2015 14:32
Architekt zły, architekt ma bardzo ostre kły. Najlepiej, najtaniej u Pana Wac'a. A prawo budowlane, oj tam może zmienią zanim zrobimy. Panie Wacu daj Pan namiar na siebie będziesz Pan monopolistą
Wiecej na Forum BudujemyDom.pl
Najnowsze artykuły
Czytaj tak, jak lubisz
W wersji cyfrowej lub papierowej
Moduł czytaj tak jak lubisz