Czy warto budować mały dom (do 35 m2)?

Czy warto budować mały dom (do 35 m2)?

Mały dom to niższe koszty budowy oraz późniejszej eksploatacji. Ponadto można go postawić szybciej, a mając nieco zdolności i czasu - wiele prac wykonać samemu. W trudnych czasach zainteresowanie nimi zawsze rośnie. Szczególnie tymi najmniejszymi, o powierzchni zabudowy do 35 m2.

Streszczenie artykułu
Duże domy to marzenie wielu osób, które cenią sobie przestrzeń i komfort. Jednak ich budowa jest związana z wieloma wyzwaniami, zarówno finansowymi, jak i technicznymi. Kluczowym pytaniem jest, czy stać nas na budowę takiego domu. Koszty budowy domu zależą od wielu czynników, takich jak wielkość domu, użyte materiały, sposób wykonania, lokalizacja czy standard wykończenia. Budowa dużego domu wiąże się z większymi kosztami materiałowymi, ale również z większym zużyciem energii na jego ogrzewanie i utrzymanie. Ponadto, większy dom to także większa powierzchnia do utrzymania, co wymaga dodatkowych nakładów finansowych i czasowych. Z drugiej strony, duży dom to więcej przestrzeni do życia, co może przekładać się na wyższy komfort i jakość życia. W przypadku decyzji o budowie dużego domu warto zwrócić uwagę na możliwość podziału go na mniejsze, niezależne części, co może pozwolić na lepsze wykorzystanie przestrzeni i zwiększenie efektywności energetycznej. Ostateczna decyzja o budowie dużego domu powinna być dobrze przemyślana i oparta na solidnej analizie finansowej.

Przez ostatnie lata Polacy coraz częściej decydują się na budowę niewielkich domów. Nawet o powierzchni użytkowej poniżej 100 m2, co w przypadku całorocznych domów jednorodzinnych jeszcze kilka lat temu było rzadkością. Ta tendencja prawdopodobnie będzie się utrzymywać bo dobrze przemyślany dom tej wielkości jest w zupełności wystarczający dla wielu rodzin, a przy tym tani w budowie i późniejszym utrzymaniu. Swoisty fenomen stanowią domy do 35 m2 powierzchni zabudowy.

Dlaczego 35 m2?

Kilka ostatnich lat to czas ogromnego wzrostu zainteresowania domami w skali mikro, o powierzchni zabudowy do 35 m2. Trzeba sobie wyraźnie powiedzieć, że wynika to z nadmiaru biurokracji w kraju. Dokładniej zaś z faktu, że decydując się na tak małą budowę, możemy większości z niej uniknąć. Obejmuje je bowiem znacznie uproszczona procedura zgłoszenia i nadzoru budowy. Nie musimy mieć projektu opracowanego przez uprawnionego projektanta ani zatrudniać kierownika budowy.

Bo chociaż od kilku lat nawet domy jednorodzinne można budować na zgłoszenie, to wbrew pozorom ta nowa procedura nie różni się wiele od starej, w której trzeba było złożyć wniosek o pozwolenie na budowę. Zestaw wymaganych dokumentów pozostał praktycznie ten sam.

Natomiast uproszczenie procedur w przypadku najmniejszych domów (do 35 m2) dało naprawdę dużo. Dla niezorientowanego w budownictwie, przeciętnego człowieka, sama świadomość, że należy załatwić tyle formalności, działała zniechęcająco. Obawa o dodatkowe koszty (projekt oraz honorarium kierownika budowy) była raczej barierą psychologiczną. W końcu i tak większość osób kupuje jakiś projekt.

35 m2 powierzchni zabudowy to niezbyt dużo, ale jest to już jakaś rozsądna wielkość, powierzchnia porównywalna z małym mieszkaniem (kawalerką). Kilkanaście lat temu na zgłoszenie można było wybudować jedynie domek o powierzchni zabudowy do 10 m2. Czyli taką działkową miniaturkę. Co prawda, na rodzinnych ogródkach działkowych (ROD) dopuszczalna powierzchnia zabudowy była większa. Musimy sobie przy tym zdawać sprawę, że limit 35 m2 nie jest jakoś uzasadniony funkcjonalnie. Gdyby w prawie budowlanym przesunięto go np. do 45 m2, najpewniej właśnie takie domki by powstawały.

Infografika: Jakie cechy musi mieć mały domek budowany na zgłoszenie?
Infografika: Jakie cechy musi mieć mały domek budowany na zgłoszenie?

Budowa małego domu - nie wszystko wolno!

To, że uproszczono procedurę w odniesieniu do domków i budynków gospodarczych do 35 m2 powierzchni zabudowy, nie oznacza bynajmniej, że możemy je stawiać zupełnie dowolnie - gdzie chcemy i jak chcemy. Przede wszystkim jakakolwiek zabudowa musi być zgodna z ustaleniami zawartymi w miejscowym planie zagospodarowania przestrzennego (MPZP) lub z decyzją o warunkach zabudowy. Jeżeli mamy działkę, na której nie dopuszcza się zabudowy, to nie wzniesiemy na niej żadnego domu. Choćby najmniejszego.

Trzeba od razu uprzedzić, że postawienie bez zgłoszenia lub pozwolenia gotowego domu modułowego czy starej przyczepy kempingowej też jest nielegalne. Nawet jeśli nie są one związane w żaden sposób z gruntem. Również obiekty z założenia tymczasowe, choćby barakowóz, można ustawić na posesji tylko po uprzednim zgłoszeniu i na okres nie dłuższy niż 180 dni. Jeżeli ktoś kojarzy sławną sprawę wozu Drzymały, to od razu wyjaśnijmy, że we współczesnej Polsce pomysł mieszkania w wozie przesuwanym co kilka dni nijak by nie przeszedł.

Ponadto według tych uproszczonych zasad, możliwa jest stawianie budynków letniskowych (budynków rekreacji indywidualnej) oraz gospodarczych. Nie zaś pełnoprawnych, całorocznych budynków mieszkalnych. Jeżeli zaś wybudujemy taki dom jako rekreacyjny, a potem zechcemy w nim zamieszkać na stałe, to konieczne będzie wystąpienie z wnioskiem o zmianę sposobu użytkowania i przedstawienie - sporządzonej przez uprawnionego projektanta - dokumentacji stwierdzającej, że budynek spełnia wymogi dotyczące domów całorocznych.

Nic więc specjalnie nie zyskujemy, względem normalnej procedury zgłoszenia budowy budynku mieszkalnego jednorodzinnego. Co innego, jeżeli faktycznie ma to być dom na działce letniskowej, nawet na weekendowe wypady przez cały rok. Wtedy nie obowiązują nas wymagania względem izolacyjności przegród, zapotrzebowania na energię pierwotną (EP), wyposażenia w instalację grzewczą itd.

Niezależnie zaś od wielkości budynku musimy zachować rozmaite wymogi wynikające z prawa budowlanego i innych przepisów. Chociażby obowiązek zachowania przynajmniej 4 m odległości pomiędzy granicą działki, a ścianą z oknami lub drzwiami (3 m w przypadku ścian bez otworów). Poza tym, budynek letniskowy może być maksymalnie 1 na każde 500 m2 powierzchni posesji, zaś gospodarcze 2 na 500 m2. Przy tym nie określono minimalnej odległości pomiędzy samymi budynkami.

Budowa małego domu - co można?

W pierwszym rzędzie trzeba wyjaśnić, jak określa się powierzchnię zabudowy, bo to podstawowy czynnik ograniczający. Generalnie, powierzchnia zabudowy to powierzchnia rzutu domu mierzona po obrysie jego ścian zewnętrznych. Czyli jeżeli ma kształt prostokąta o wymiarach 7 × 5 m, to powierzchnia zabudowy wynosi 35 m2.

Jednak brak zgodności co do tego, jak traktować tarasy i mocno wysunięte dachy. Tu nawet orzecznictwo sądowe bywa sprzeczne. Możemy się spodziewać, że taras zadaszony, a w szczególności podparty słupami, zostanie zaliczony do powierzchni zabudowy. Nie ma zaś jasnej wykładni w odniesieniu do tarasów bez zadaszenia.

Najbezpieczniejszy pod tym względem wariant to zamiast budować typowy taras, wykonać utwardzenie gruntu. Choćby płytami lub kostką brukową. Jest to wówczas utwardzenie terenu. A takie możemy wykonać nawet bez zgłoszenia. Oczywiście, pozostając w zgodzie z wymogami przepisów prawa, czyli np. nie możemy zmniejszyć powierzchni biologicznie czynnej bardziej, niż pozwala na to MPZP.

Drugim ważnym czynnikiem jest liczba kondygnacji. Wznoszone na podstawie zgłoszenia budynki do 35 m2 muszą być parterowe. Powszechnie przyjęta interpretacja tego przepisu jest taka, że nie mogą przy tym mieć poddasza użytkowego. Dozwolone jest za to poddasze nieużytkowe. Możemy zatem np. traktować je jako składzik na rzadziej używane rzeczy, lecz sypialni już tam nie urządzimy.

Za to dozwolone jest zrobienie antresoli, gdyż ta zgodnie z prawem, nie jest osobną kondygnacją. Antresola musi mieć powierzchnię mniejszą niż powierzchnia podłogi kondygnacji, której część stanowi. Ale żaden przepis nie określa o ile ma być mniejsza. Możemy równie dobrze pozostawić tylko nieco większy wolny pas jako otwór na schody. Co najistotniejsze, antresola nie może być wydzielona od podstawowej kondygnacji przegrodami budowlanymi (poza stropem).

Innymi słowy, nie oddzielimy jej od parteru ściankami działowymi, choćby lekkimi (szkieletowymi). Powinna zaś mieć balustradę chroniącą przed upadkiem. Jednak z tym ograniczeniem da się w praktyce całkiem nieźle uporać. Nie możemy wykonać ścian działowych, ale przecież możemy ustawić w tych miejscach meble. Nawet spore szafy lub regały zrobione na wymiar.

Co bardzo ważne, taki budynek z antresolą musi być dość wysoki. Minimalna wysokość wnętrz mieszkalnych w części poniżej antresoli to 2,5 m, na antresoli przynajmniej 2,2 m. Przy tym w pomieszczeniach ze skosami dachu liczy się średnia, poczynając od 1,9 m. Czyli w najwyższym miejscu powinien mieć przynajmniej 2,5 m (ponieważ (1,9+2,5) : 2 = 2,2 m).

Żeby taka antresola była naprawdę użyteczna, ten nasz mały domek będzie musiał być wysoki, z parterem wysokości ok. 4 m. Plus jeszcze spadzisty dach. Cały budynek może mieć więc od poziomu gruntu do kalenicy nawet 7 m. Przy wielkości podstawy w granicach 5 ×7 m, to naprawdę dużo. Ale tu przepisy ogólne nie ograniczają maksymalnej wysokości. Obowiązuje nas po prostu to, co zapisano w MPZP lub decyzji o warunkach zabudowy.

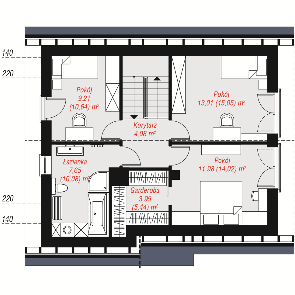
Rzut parteru domku o powierzchni 35 m2
W domku o powierzchni 35 m2 podstawowym ograniczeniem jest niewielka przestrzeń. W tym przypadku, jeżeli kondygnacja będzie wysoka (ok. 4 m), da się wygospodarować jeszcze całkiem sporą funkcjonalną antresolę. (rys. J. Antkiewicz)

Dom do 35 m2, a może jednak większy? Ile kosztuje budowa małego domu?

Trzeba uczciwie powiedzieć, że opisane dotąd domy o powierzchni zabudowy 35 m2 to takie budowlane mikrusy. Wystarczające jako działkowe lub naprawdę małe mieszkanie. Jeżeli myślimy o całorocznym domu jednorodzinnym, coś większego będzie znacznie bardziej funkcjonalne.

Przy tym postawienie nieco obszerniejszego, choć nadal niezbyt dużego domu można uznać za nawet bardziej opłacalne. Oczywiście, całkowity koszt budowy wzrośnie. Jednak koszty będą rosły wolniej, niż powierzchnia użytkowa domu. Innymi słowy - całkowite koszty będą wyższe, lecz cena 1 m2 powierzchni użytkowej spadnie. Ma się rozumieć, pod warunkiem, że projekt będzie przemyślany, konstrukcja domu prosta, a jego przestrzeń dobrze zagospodarowana. Bo przecież i mały dom może być skomplikowany, zaś jego budowa droga.

Trzeba jasno powiedzieć, że i taki najmniejszy dom o powierzchni zabudowy do 35 m2 to spory wydatek. Jeżeli ma mieć wymagane parametry domu całorocznego (izolacja ścian, okien itp.), to nawet wykonując większość prac samodzielnie, wydamy na niego ok. 70 000 zł. Żeby zlecić budowę, będziemy już musieli dysponować budżetem ponad 100 000 zł.

Niewątpliwie zdarzają się wyjątki, my Polacy dokonujemy zaś niekiedy niemal cudów gospodarności i oszczędności, stawiając upragniony dom. Jednak wymaga to niemałej determinacji oraz czasu poświęconego nie tylko na wykonanie wielu prac samemu, lecz również na wyszukiwanie dobrych a niedrogich materiałów czy elementów wyposażenia domu.

Można względnie tanio wznieść także nieco większy budynek. Warto sobie uświadomić, że powierzchnia ścian zewnętrznych (za którą płacimy) przyrasta znacznie wolniej, niż powierzchnia użytkowa (którą zyskujemy). Przypomnijmy przywołany już domek o wymiarach 5 × 7 m. Łączna długość jego ścian zewnętrznych to 24 m, ich powierzchnia zależeć będzie zaś od wysokości kondygnacji. Czyli mamy 35 m2 powierzchni zabudowy i 24 m długości ścian zewnętrznych.

A jak te proporcje będą wyglądać w domu o wymiarach 8 × 9 m? Powierzchnia wzrośnie przeszło dwukrotnie, do 72 m2. Łączna długość ścian wyniesie 34 m. Zatem różnica wynosi tylko 10 m, przyrost o nieco ponad 40%. Oczywiście, wrośnie również powierzchnia podłogi na gruncie, stropu oraz dachu, ale przydatna przestrzeń mieszkalna będzie przyrastać znacznie szybciej, szczególnie jeśli zdecydujemy się na poddasze użytkowe.

Nie bez powodu od lat najpopularniejsze w Polsce są domy z poddaszem użytkowym, z dość wysoką ścianką kolankową (1,0-1,5 m). Nie są pozbawione wad, lecz trzeba przyznać, że to taka wersja kompakt - zwarta bryła z dużą przestrzenią mieszkalną przy umiarkowanej powierzchni przegród, małej powierzchni zabudowy i prostej konstrukcji.

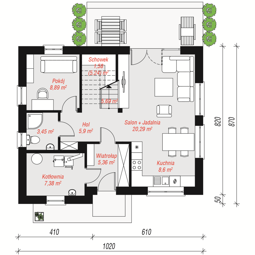
Mały dom

Prosta bryła i dobry układ wnętrz, w którym łazienki znajdują się jedna nad drugą oraz tuż obok kotłowni. Zwarta bryła domu to mniejsza powierzchnia przegród zewnętrznych, a tym samym mniejsze straty ciepła. (fot. Biuro Projektów ARCHON+)

Budowa małego domu - im prościej, tym lepiej

Jednym z głównych czynników przemawiających na korzyść małych domów jest niski koszt ich wzniesienia. Ale żeby tak rzeczywiście było, ich podstawową cechą powinna być prostota. W pierwszym rzędzie chodzi o zwartą i prostą bryłę. Lecz nie tylko. Rozdzielone konstrukcyjnym słupem dwa okna o typowej szerokości mogą z powodzeniem zastąpić jedno, bardzo szerokie przeszklenie. Wykonanie będzie znacznie łatwiejsze, a różnica w cenie ogromna.

Cała konstrukcja powinna być dobrze przemyślana, pozbawiona trudnych do wykonania elementów. Przykładowo, strop nad parterem może mieć mniejszą rozpiętość, jeżeli oprzemy go na odpowiednio rozmieszczonych wewnętrznych ścianach nośnych. A konstrukcja symetrycznego, dwuspadowego dachu będzie sporo tańsza i jego pokrycie łatwe do poprawnego wykonania. Zaoszczędzone dzięki temu pieniądze lepiej przeznaczyć na dobre materiały i doświadczonych fachowców.

Bardzo ważna jest sama technologia budowy. Wciąż zdecydowanie dominują domy murowane, ale na popularności wyraźnie zyskują te z drewna - szkieletowe i z bali. Szczególnie w wersji prefabrykowanej, gdzie większość prac można wykonać nie na placu budowy, lecz w fabryce. Oznacza to możliwość użycia precyzyjnych maszyn do przygotowania elementów i uniezależnienia się od pogody, bo produkcja odbywa się w zamkniętej hali. Prefabrykacja ogromnie przyspiesza cały proces budowy i zapewnia dużo lepszą kontrolę jakości.

Technologia szkieletowa oraz nowoczesne wcielenie ścian z bali, w których izolację cieplną umieszcza się np. pomiędzy dwoma warstwami drewna, pozwala ponadto uzyskać bardzo ciepłe ściany przy znacznie mniejszej grubości, niż ocieplone przegrody murowane. Ściana szkieletowa może mieć zaledwie ok. 20 cm grubości, bo cały jej przekrój wypełnia izolacja. Murowana o takiej izolacyjności będzie dwa razy grubsza (40 cm).

Warto sobie uświadomić, że przy tych samych wymiarach zewnętrznych budynku, w środku to różnica aż 40 cm - zarówno na szerokości, jak i długości. Całkiem sporo, szczególnie w małym domu. Łatwo dzięki temu zrozumieć popularność technologii szkieletowej w przypadku najmniejszych domów. Zostańmy przy naszym przykładzie budynku 5 × 7 m. Ze ścianami grubości 20 cm będzie on miał wewnątrz wymiary 4,60 × 6,60 m. Czyli 30,36 m2. Jeżeli jednak ściany miałyby po 40 cm, to przestrzeń wewnątrz skurczyłaby się do 4,20 × 6,20 m. A to już tylko 26,04 m2.

Bardzo niedocenianym elementem są instalacje. Co można zrobić żeby je uprościć i obniżyć koszty wykonania bez pogorszenia jakości? Najlepsza metoda to grupować pomieszczenia techniczne i sanitarne jak najbliżej siebie - przez ścianę lub jedno nad drugim. Wtedy rurociągi będą krótkie, łatwiej będzie wykonać wentylację, da się ograniczyć liczbę kominów i pionów kanalizacyjnych. Tu także sprawdza się naczelna zasada tworzenia rzeczy prostych i funkcjonalnych.

Redaktor: Jarosław Antkiewicz
fot. otwierająca: Biuro Projektów ARCHON+

FAQ Pytania i odpowiedzi
  • Czy budowa dużego domu jest droższa?

    Tak, budowa dużego domu jest zazwyczaj droższa ze względu na większą ilość materiałów budowlanych i dłuższy czas pracy.
  • Czy duże domy są bardziej energochłonne?

    Tak, duże domy są zazwyczaj bardziej energochłonne, co oznacza, że koszty utrzymania mogą być wyższe.
  • Czy duże domy są trudniejsze do sprzedaży?

    Tak, duże domy mogą być trudniejsze do sprzedaży, ponieważ nie każdy potrzebuje lub stać go na tak dużo przestrzeni.
  • Jakie są zalety posiadania dużego domu?

    Zalety posiadania dużego domu to przede wszystkim duża przestrzeń, która pozwala na swobodne urządzenie domu według własnych potrzeb i gustu. Duży dom to także więcej miejsca dla rodziny i gości.
  • Czy warto inwestować w duży dom?

    To zależy od indywidualnych potrzeb i możliwości finansowych. Duży dom to większe koszty budowy, utrzymania i potencjalnie trudności ze sprzedażą w przyszłości. Jednak dla niektórych osób przestrzeń i komfort mogą przeważyć nad tymi wadami.
  • Czytaj więcej Czytaj mniej
Jarosław Antkiewicz
Jarosław Antkiewicz
Człowiek wielu zawodów, instalator z powołania i życiowej pasji. Od kilkunastu lat związany z miesięcznikiem i portalem „Budujemy Dom”. W swojej pracy najbardziej lubi znajdywać proste i praktyczne rozwiązania skomplikowanych problemów. W szczególności propaguje racjonalne podejście do zużycia energii oraz zdrowy rozsądek we wszystkich tematach związanych z budownictwem. W wolnych chwilach, o ile nie udoskonala czegoś we własnym domu i jego otoczeniu, uwielbia gotować albo przywracać świetność klasycznym rowerom.
Komentarze

Moim skromnym zdaniem jest na to renesans. Ludzie uciekaja z miast i moga mieć taniej 2 pokoje z kuchnią i po horyzont przestrzeń. Architekci prześcigają się w projektach. Tu na forum widac też wysyp tematów z odrolnieniem działki, która aż prosi się o domek na weekendowy wyjazd ...
Gość Max
16-04-2021 14:51
Też byłem przekonany że mamy boom na domki do 35m2... dopóki nie zobaczyłem statystyk za 2020. Okazuje się, że liczba takich domków budowanych na zgłoszenie spadła w stosunku do 2019. W całym kraju zgłoszono ich ok. 1,9 tys., a tradycyjnych pozwoleń na budowę domu wydano ponad ...
Teraz jest boom na domki 35m2 ale mowa o powierzchni zabudowy. Firmy złapały trop i zarówno architekci, jak i wykonawcy budują i projektuja na potęgę. Wystarczy w mediach społecznościowych zapoznać się z projektami i realizacjami na dedykowanej grupie (łatwo znaleźć po nazwie). ...
Wiecej na Forum BudujemyDom.pl
Najnowsze artykuły
Czytaj tak, jak lubisz
W wersji cyfrowej lub papierowej
Moduł czytaj tak jak lubisz