Odbiór instalacji elektrycznej: co musisz wiedzieć, aby był zgodny z przepisami?

Odbiór instalacji elektrycznej: co musisz wiedzieć, aby był zgodny z przepisami?

Protokół odbioru instalacji elektrycznej jest dokumentem potwierdzającym, że instalacja została wykonana zgodnie z projektem i jest bezpieczna dla użytkowników.

Co powinien zawierać protokół odbioru instalacji elektrycznej?

W protokole odbioru instalacji elektrycznej powinna zostać zawarta ocena zgodności lokalizacji punktów elektrycznych z rzutem instalacji elektrycznej. Osoba dokonująca odbioru musi sprawdzić, czy wszystkie punkty, które były uwzględnione w projekcie, zostały zrealizowane.

Ważna jest także wysokość i liniowość usytuowania punktów elektrycznych. Chodzi o to, czy te punkty są usytuowane na tej samej wysokości złożonej. Jest to bardzo istotne w przypadku gniazd nadblatowych w kuchni.

W dokumencie powinny zostać także wyszczególnione wszystkie istotne parametry pomiarowe.

Kto sporządza protokół odbioru instalacji elektrycznej?

Protokół odbioru instalacji elektrycznej powinien być sporządzony przez elektryka legitymującego się certyfikatem kwalifikacyjnym grupy G1. Taka osoba posiada odpowiednie uprawnienia do przeprowadzenia takiego odbioru i jest w stanie prawidłowo ocenić stan instalacji elektrycznej.

Certyfikat kwalifikacyjny grupy G1 jest dokumentem, który potwierdza, że osoba posiada odpowiednie uprawnienia do pracy z urządzeniami, instalacjami i sieciami elektroenergetycznymi, wytwarzającymi, przetwarzającymi, przesyłającymi i zużywającymi energię elektryczną.

Ile kosztuje protokół odbioru instalacji elektrycznej?

Koszt sporządzenia protokołu odbioru instalacji elektrycznej może się różnić w zależności od wielu czynników. Może na niego wpływać poziom skomplikowania instalacji, lokalizacja nieruchomości, czy też firma lub osoba, która sporządza protokół. Koszt może się wahać od kilku do kilkunastu złotych za jeden mierzony punkt. Zawsze warto skonsultować się z kilkoma specjalistami, aby uzyskać najbardziej korzystną ofertę.

Jak wypełnić protokół odbioru instalacji elektrycznej?

Protokół powinien zawierać dane firmy i pieczątkę elektryka posiadającego certyfikat kwalifikacyjny grupy G1. Należy w nim także umieścić informację dotyczącą podmiotu, który wykonał instalację. Oczywiście, w protokole muszą zostać podane także dane nieruchomości i jej właściciela.

Kluczowe informacje dotyczą także plomb oraz lokalizacji skrzynki elektrycznej, a także wysokości napięcia w punktach elektrycznych. Istotna są także: moc zainstalowanych odbiorników, rodzaj, materiał i przekrój przełącza, zgodność umieszczenia punktów z rzutem instalacji oraz wspomniana już wysokość i liniowość usytuowania punktów elektrycznych.

Na każdej stronie protokołu powinien znaleźć się podpis obu stron. W Internecie znaleźć można wzory protokołu odbioru instalacji elektrycznej w wersji PDF, gotowe do wydruku. Taki szablon wystarczy wypełnić wpisując do niego wymagana informacje, a następnie podpisać.

Jakie dokumenty są potrzebne do odbioru instalacji elektrycznej?

Podczas odbioru instalacji elektrycznej niezbędna będzie dokumentacja projektowa, która dała podstawy do wykonania instalacji. Poza tym potrzebny będzie protokół zdawczo-odbiorczy licznika (jeśli mieszkanie kupowane jest na rynku wtórnym należy pamiętać o konieczności przepisania licznika energetycznego na nabywcę).

Dokumentem wieńczącym odbiór jest protokół odbioru instalacji elektrycznej, czyli dokument potwierdzający, że wykonana instalacja kwalifikuje się do bezpiecznej eksploatacji. Warto także pamiętać o certyfikacie kwalifikacyjnym grupy G1, którym powinna się legitymować osoba dokonująca odbioru.

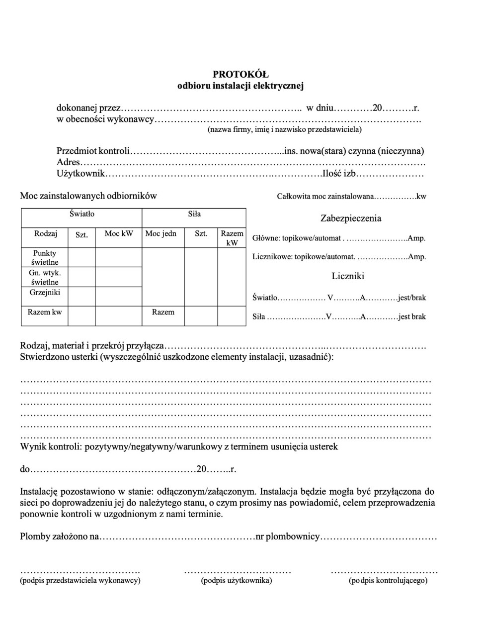
Wzór protokołu odbioru instalacji elektrycznej
Wzór protokołu odbioru instalacji elektrycznej

Jak długo ważny jest protokół odbioru instalacji elektrycznej?

Ważność protokołu odbioru instalacji elektrycznej upływa po 3 latach od daty wydania - po upływie tego czasu dokument przestaje obowiązywać. Po 12 miesiącach od wydania protokołu należy go odnowić, pamiętając o tym, że protokół odbioru instalacji elektrycznej powinien być sporządzony przez elektryka posiadającego certyfikat kwalifikacyjny grupy G11.

Redaktor: Damian Żabicki
fot. otwierająca: wygenerowana przez AI

Damian Żabicki
Damian Żabicki
Damian Żabicki to doświadczony autor, który od 2020 roku dostarcza czytelnikom portalu Budujemydom.pl wartościowych treści z zakresu budownictwa. Jego artykuły charakteryzuje połączenie wiedzy technicznej z praktycznym podejściem, co czyni je niezwykle przydatnymi zarówno dla profesjonalistów, jak i osób planujących samodzielne prace remontowe lub budowę domu.
Komentarze

Najnowsze artykuły
Czytaj tak, jak lubisz
W wersji cyfrowej lub papierowej
Moduł czytaj tak jak lubisz