Projekt na ogrzewanie podłogowe. Konieczność czy zbędny wydatek?

Ogrzewanie podłogowe kusi komfortem i estetyką, ale o jego realnej opłacalności decyduje coś mniej „widocznego” niż rury w wylewce: profesjonalny projekt. To on pozwala dopasować parametry do budynku, źródła ciepła i wykończenia posadzki, dzięki czemu podłogówka grzeje równo, stabilnie i tanio.

Projekt na ogrzewanie podłogowe. Konieczność czy zbędny wydatek?
Ferro S.A. Armatura instalacyjna
Dane kontaktowe:
+48 12 25 62 100
Przemysłowa 7 32-050 Skawina
Zobacz firmę w innym dziale: Armatura kuchenna i łazienkowa

PokażUkryj szczegółowe informacje o firmie

Czego dowiesz się z artykułu?

Dlaczego projekt podłogówki ma większe znaczenie niż wybór rur?

Rosnąca popularność ogrzewania podłogowego w nowoczesnym budownictwie to kwestia nie tylko estetyki i komfortu cieplnego, lecz przede wszystkim wymiernych oszczędności.

Systemy ogrzewania płaszczyznowego, szczególnie w połączeniu z niskotemperaturowymi źródłami ciepła, jak pompy ciepła, są znacznie bardziej efektywne niż tradycyjne grzejniki — pod warunkiem jednak, że zostały odpowiednio zaprojektowane i wykonane.

W praktyce oznacza to jedno: bez projektu trudno precyzyjnie dobrać parametry instalacji, a bez właściwych parametrów trudno mówić o komforcie i niskich kosztach eksploatacji.

Projekt jest więc nie tylko „papierem do teczki”. To instrukcja działania systemu: mówi, gdzie i jak gęsto układać pętle, jakie długości zachować, jakie temperatury ustawić i jak dobrać elementy tak, by całość pracowała przewidywalnie.

Skąd biorą się oszczędności z użytkownaia podogówki?

Wraz ze wzrostem popularności pomp ciepła, ogrzewanie podłogowe staje się coraz częściej wybieranym rozwiązaniem w nowoczesnym budownictwie. Jego największym atutem jest bardzo korzystny pionowy rozkład temperatury: najwyższa jest przy podłodze, której cała powierzchnia działa jak grzejnik, zapewniając przyjemne ciepło w stopy, podczas gdy na poziomie ludzkiej głowy temperatura jest o 3-4°C niższa. To właśnie dlatego odczucie komfortu pojawia się szybciej i „naturalniej” niż przy klasycznych grzejnikach.

Dzięki temu, że ciepło jest tam, gdzie najbardziej go potrzebujemy, komfort cieplny osiągamy przy temperaturze powietrza niższej o 2–3°C niż w przypadku tradycyjnych grzejników.

A to przekłada się na oszczędności — obniżenie temperatury w pomieszczeniu o 1°C zmniejsza zużycie energii w skali sezonu grzewczego nawet o 6%. Projekt pozwala te korzyści „wydobyć”, bo kontroluje, czy system faktycznie oddaje tyle ciepła, ile powinien, i czy robi to równomiernie.

Temperatura podłogi i rodzaj wykończenia - tu najłatwiej o błąd

Kluczowym parametrem, który wpływa na komfort użytkownika, jest optymalna temperatura powierzchni podłogi. Powinna dawać przyjemne ciepło, ale bez wrażenia przegrzania.

W praktyce w pomieszczeniach mieszkalnych jest to zwykle około 27°C, a w łazienkach - do 33°C. Żeby te wartości były realne (a nie „na oko”), trzeba zaprojektować układ z uwzględnieniem temperatury zasilania oraz rodzaju wykończenia podłogi.

Podłogówka najlepiej sprawdza się pod płytkami ceramicznymi, bo mają niski opór cieplny i szybko oddają ciepło do pomieszczenia. Równie dobrze może jednak działać przy panelach, parkiecie czy wykładzinie - pod warunkiem, że instalator wie dokładnie, jak zamontować i uruchomić taki system.

Każdy materiał ma inny opór cieplny, więc wymaga innego rozstawu rur i innych parametrów pracy. To jeden z głównych powodów, dla których projekt nie jest dodatkiem, tylko fundamentem sprawnie działającej instalacji.

Co zawiera dobry projekt ogrzewania podłogowego?

Profesjonalny projekt ogrzewania podłogowego to dokumentacja techniczna, która precyzyjnie określa parametry pracy całego układu grzewczego. Zwykle obejmuje część obliczeniową i rysunkową, a wcześniej wymaga analizy strat ciepła w poszczególnych pomieszczeniach, z uwzględnieniem ewentualnych zmian w izolacji budynku lub układzie wnętrz.

Projektant musi też znać planowane wykończenie podłóg (kafelki, panele, drewno), bo wpływa ono na opór cieplny warstwy wierzchniej, oraz układ pomieszczeń wraz z miejscami, w których podłogówki nie da się ułożyć, na przykład pod stałymi zabudowami, wanną, kominkiem czy meblami kuchennymi. Ważna jest również planowana lokalizacja rozdzielacza, bo od niej zależą długości pętli i hydraulika całej instalacji.

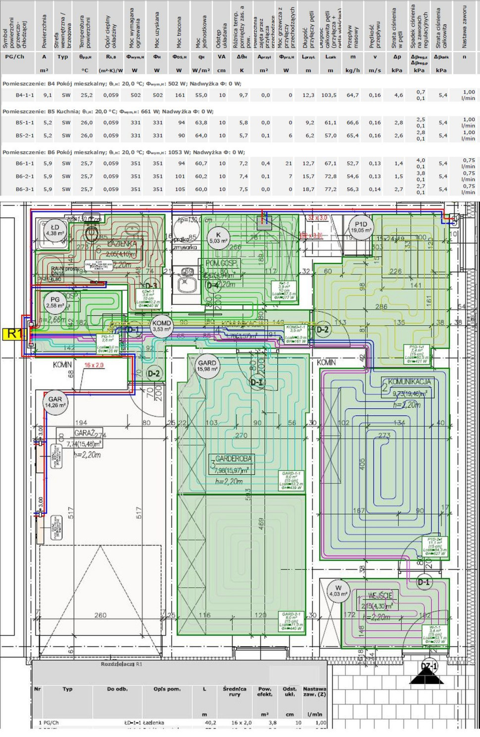
Projekt ogrzewania podłogowego - rysunki techniczne + obliczenia
Projekt ogrzewania podłogowego - rysunki techniczne + obliczenia

Dopiero na tej podstawie można sensownie ustalić temperaturę na zasilaniu ogrzewania podłogowego, docelową temperaturę powierzchni posadzki, długości i rozstaw pętli grzewczych, średnice rur oraz parametry pompy cyrkulacyjnej wyznaczone m.in. ze strat ciśnienia.

Innymi słowy: projekt odpowiada na pytanie, jak uzyskać równą temperaturę w każdym pomieszczeniu bez niepotrzebnego „dokręcania” instalacji, które kończy się wyższymi rachunkami.

W tym zakresie warto zdać się na kompetencje firmy FERRO, która oferuje kompleksowe wsparcie - dostarczenie wysokiej jakości materiałów wraz z profesjonalnym projektem instalacji dopasowanym do konkretnego obiektu.

Jak wygląda wsparcie projektowe FERRO w praktyce?

Firma FERRO oferuje swoim partnerom wsparcie techniczne i projektowe. W praktyce proces jest prosty: instalator, po konsultacji z inwestorem, przekazuje przedstawicielowi handlowemu FERRO niezbędne dane oraz rzuty budynku, a Dział Techniczny na tej podstawie opracowuje kompletny projekt - obejmujący obliczenia i część rysunkową - zwykle w ciągu 7 dni roboczych.

Dla wykonawcy oznacza to mniejsze ryzyko błędów, a dla inwestora większą pewność, że parametry są dobrane do budynku i źródła ciepła, zgodne z wymaganiami obiektu, a komponenty kompatybilne i dobrej jakości.

Dlaczego podłogówka nie zawsze działa prawidłowo?

Projekt to dopiero początek. O sukcesie całej instalacji decyduje precyzyjne wykonanie zgodnie z założeniami dokumentacji, dlatego kluczowy jest profesjonalny, przeszkolony wykonawca, który nie układa pętli grzewczych „na oko”, tylko pilnuje ich długości, odstępów między rurami i promieni gięcia.

Równie ważne są detale: taśma brzegowa, profile dylatacyjne oddzielające pętle od siebie oraz od elementów konstrukcyjnych budynku, a także prawidłowo dobrany i wykonany jastrych, czyli wylewka z plastyfikatorami — najlepiej zamówiona w wyspecjalizowanej betoniarni.

Nie można też „przeskoczyć” rozruchu instalacji. Od momentu wykonania wylewki do pełnego rozruchu mija nawet do dwóch miesięcy, bo system musi wejść w pracę stopniowo i bezpiecznie dla posadzki. W razie wątpliwości na każdym etapie realizacji można kontaktować się z Działem Technicznym FERRO, bezpośrednio lub poprzez Przedstawiciela Handlowego.

Kiedy obowiązuje 15-letnia gwarancja na szczelność systemu?

Jeśli wszystkie etapy - od projektu po montaż - zostaną wykonane zgodnie ze sztuką budowlaną i wytycznymi FERRO, inwestor zyskuje dodatkową korzyść: 15 lat gwarancji na szczelność kompletnego systemu ogrzewania podłogowego.

Obejmuje ona wszystkie kluczowe komponenty, czyli rury, złączki i rozdzielacze. To jednocześnie potwierdzenie jakości i praktyczny argument za tym, by nie traktować projektu oraz wykonania jako miejsca do „oszczędzania na skróty”.

źródło i zdjęcia: FERRO

Autor
Aleksander Rembisz
Aleksander Rembisz
Ciągły kontakt z ludźmi to dla mnie prawdziwa przyjemność i naturalne środowisko pracy. Może właśnie dlatego w redakcji czuję się niczym ryba w wodzie. Moja przygoda z pracą w wydawnictwie i budowlaną prasą branżową zaczęła się całkiem niewinnie - ponad 20 lat temu - jeszcze na studiach. I tak oto inżynier budowlany został redaktorem. Początkowo zakres moich obowiązków obejmował przygotowanie do druku wydań branżowych, ale wraz z rozwojem mediów musiałem siłą rzeczy przebranżowić się na copywritera, moderatora forum branżowego i administratora profili redakcyjnych na platformach SM. Znajdziecie mnie na Facebook - Budomisja Złote Porady Budowlańców, Linkedin - Grupa Budujemy Dom, forum.budujemydom.pl, oraz ślad po mnie na portalach budujemydom.pl i budownictwob2b.pl.