Jak wygląda nowoczesny dom na zamówienie?

Jak wygląda nowoczesny dom na zamówienie?

Dom, który prezentujemy, wzniesiono na obrzeżach stolicy, w dzielnicy Wawer. Ma około 230 m2 powierzchni użytkowej i stanął na przeszło 1000-metrowej działce. Projekt wykonano na indywidualne zamówienie, a samą budowę zorganizowano w dość rzadko spotykanej w naszym kraju formule inwestora zastępczego. O budynku rozmawiamy z Łukaszem Bartnikiem, projektantem i wspólnikiem w firmie Paziewski Bartnik Nieruchomości.

Janusz Werner: Czym dom w Wawrze różni się od współczesnego "projektu typowego"?

Łukasz Bartnik: Dom w Wawrze powstał w oparciu o dokładne wskazówki inwestora. Klient był świetnie przygotowany do współpracy z nami, przyniósł na pierwsze spotkanie bardzo dużo materiału do analizy - zdjęć, rysunków. Połączenie wskazanych elementów pozostawił nam, ale chyba się udało, ponieważ na etapie koncepcji wniósł tylko jedną uwagę - prosił o zmianę wielkości dwóch okien - po czym zatwierdził cały projekt.

Ta wiedza i zdecydowanie, które wniósł do współpracy, z jednej strony sprawiły, że szybko "trafiliśmy w punkt", z drugiej zaś, że budynek funkcjonalnie różni się od obecnych trendów. Klient np. całkowicie zrezygnował z garażu, mimo że było na to miejsce. Ponad 50% powierzchni parteru przeznaczyliśmy na salon z jadalnią, nie licząc otwartej kuchni. Elementy obecnie bardzo istotne, jak spiżarnia, garderoby, schowki, zostały ograniczone do minimum.

Budynek typu nowoczesna stodoła stanął na działce pod lasem
Budynek typu nowoczesna stodoła stanął na działce pod lasem
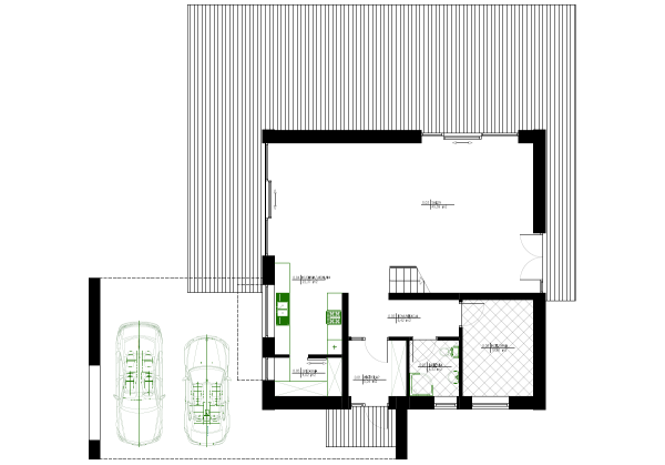
Rzut parteru domu w Wawrze
Rzut parteru domu w Wawrze

JW: Czym ten budynek różni się od domów wznoszonych w Polsce pod koniec lat 90.?

ŁB: Podstawowe elementy się nie zmieniły. Ławy fundamentowe są lane z betonu, zbrojone prętem żebrowanym, ściany fundamentowe murowane z bloczków, a ściany kondygnacji naziemnych z pustaków ceramicznych. W latach 90. stropy wykonalibyśmy pewnie z popularnej terivy, ale obecnie 100% naszych budynków ma płyty lane z betonu zbrojone krzyżowo - ten element pozwala na większą swobodę w kształtowaniu przestrzeni i ewentualne przesuwanie ścian działowych w trakcie budowy. Więźba dachowa nie imponuje nowoczesnością, to drewno sosnowe impregnowane.

Tak naprawdę różnice widać w układzie wnętrza, który jak wspomniałem odbiega nawet od obecnych standardów, oraz w formie elewacji i w zastosowanych materiałach elewacyjnych. Dwadzieścia lat temu trudno byłoby sobie wyobrazić płytkę włóknocementową na ścianie. Okapy, których dom w Wawrze nie ma, były obowiązkowe. Drewno kojarzyło się z zabudową wiejską i kłopotami z konserwacją. Były też wszechobecne balkony, których dziś praktycznie nie stosujemy, ponieważ nikt z nich nie korzysta.

Ściany szczytowe obłożono drewnem, to modrzew syberyjski
Ściany szczytowe obłożono drewnem, to modrzew syberyjski

JW: Skąd pomysł na układanie na elewacji pokryć dachowych?

ŁB: Do stosowania nietypowych rozwiązań elewacyjnych "zmusza nas" skromna bryła budynku, tak szalenie dziś popularna. Z jednej strony klienci chcą być modni, więc nie eksperymentują z formą, z drugiej zaś chcą, by ich dom czymś się wyróżniał. Najprostszym zabiegiem jest użycie różnych kolorów na elewacji - obecnie bardzo modne jest zestawienie szarości i bieli. Ci odważniejsi idą o krok dalej i sam kolor im nie wystarczy, dlatego na elewacje wraca drewno, blacha, kamień, ale też elementy nieznane szerszemu gronu odbiorców, jak wykorzystana tu płytka włóknocementowa.

Sam pomysł nie jest nasz. Spotkaliśmy się z nim wielokrotnie, zarówno za granicą, jak i w Polsce, sami także opracowaliśmy kilka projektów z zastosowaniem tego materiału. W pierwszej chwili rozwiązanie może wydawać się absurdalne, ale oprócz nietypowego wyglądu, elewacja zyskuje na funkcjonalności - świetnie się ją czyści myjką ciśnieniową, czy zwykłym wężem ogrodowym. Nawet solidny deszcz pomaga w utrzymaniu czystości, co akurat w przypadku domu w Wawrze ma ogromne znacznie, ponieważ gruntowe drogi potrafią zakurzyć obiekt w kilka dni.

Płytka włóknocementowa, nazywana powszechnie łupkiem, jako pokrycie dachowe oraz materiał na elewacji
Płytka włóknocementowa, nazywana powszechnie łupkiem, to popularne u naszych zachodnich sąsiadów pokrycie dachowe. Tu pojawia się także na elewacji
Wiatę garażową od środka obłożono modrzewiem, a od zewnątrz płaską blachą łączoną na rąbek
Wiatę garażową od środka obłożono modrzewiem, a od zewnątrz płaską blachą łączoną na rąbek. To trzeci materiał pojawiający się na elewacji, ale jest w takim samym kolorze, jak płytka włóknocementowa

JW: Jak układają się na tej budowie relacje inwestor - wykonawca? Czy różnią się od tych sprzed 20 lat?

ŁB: W indywidualnym budownictwie lat 90. przeważało podejście, w którym inwestor osobiście organizował i nadzorował budowę, poświęcając temu dużo czasu, często kosztem pracy i rodziny. Liczył na oszczędności wynikające z zaangażowania w proces budowy, nie miał też dostępu do współczesnych technologii - telefonu komórkowego czy Internetu. Obecnie popularna staje się instytucja inwestora zastępczego - kogoś, kto wyręczy właściciela w obowiązkach organizacyjnych dotyczących budowy i będzie dodatkowym narzędziem kontroli. Nasza firma co roku podwaja ilość klientów zainteresowanych kompleksową usługą - od projektu, poprzez budowę, po wykończenie budynku.

Właściciel domu w Wawrze praktycznie nie ma styczności z placem budowy. Kontaktujemy się z nim telefonicznie, mailowo, dwa razy w tygodniu wrzucamy do sieci zdjęcia obiektu, by mógł mieć bieżący wgląd w postęp prac. Spotykamy się na budowie tylko na wyraźne życzenie klienta, bądź w przypadku, gdy musi dokonać wyboru materiału - ostatnio deski elewacyjnej. Uważam, że tak będzie wyglądać przyszłość branży budowlanej - najpierw skrojony na miarę projekt, następnie wybór szeregu opcji wykończeniowych, proces budowy z minimalną bądź zerową ingerencją inwestora i odbiór gotowego budynku, niczym nowego auta w salonie.

Nowoczesne elementy: narożne, niskie i jednocześnie szerokie okno oraz dach bez okapu, za to z kwadratową rynną
Duże przeszklenia z tyłu budynku, z prawej strony wiata garażowa
Duże przeszklenia z tyłu budynku, z prawej strony wiata garażowa

Redaktor: Janusz Werner
zdjęcia: J. Werner

Janusz Werner
Janusz Werner
Dziennikarz z przeszło 25-letnim doświadczeniem w mediach drukowanych i elektronicznych. W Budujemy Dom od blisko dekady. Na budowach bywa tak często, jak w redakcji. Autor tekstów poradnikowych i publicystycznych, także porad prawnych. Nadąża za zmianami w największych programach pomocowych dla inwestorów indywidualnych: w Czystym Powietrzu, Moim Prądzie, Mojej Wodzie...
Komentarze

Gość Kas
14-11-2018 10:42
Świetny dom. Znam okolice i dom bardzo dobrze się wpisuje w tamtejszy styl zabudowań. Nietypowa bryła i nietypowe podejscie do tematu to odejście od oklepanych 'bezpiecznych' rozwiązań. Dom się wyróżnia ale wpisuje w krajobraz niż powielane domy z katalogu na jedno kopyto. Brawo Panie Łukaszu.
Gość Batman
10-08-2017 08:17
No faktycznie - widok z kuchni tylko do wiaty garażowej to przegięcie. No chyba, że projekt dla miłośnika motoryzacji, który nie potrafi przestać patrzeć na swoje pojazdy ;)
Gość ~gosciu
10-08-2017 07:51
Co do nowoczesności, to widok z kuchni na auta w garażu jest awangardowy. Jeśli do tego dodać jeszcze podczas wypoczynku na tarasie smród z odjeżdżającego auto to pełnia szczęścia. ;) Tylko gratulować takiego projektu.
Wiecej na Forum BudujemyDom.pl
Najnowsze artykuły
Czytaj tak, jak lubisz
W wersji cyfrowej lub papierowej
Moduł czytaj tak jak lubisz