Oszczędność
Odzyskamy dla Państwa do 80% wody deszczowej. Oszczędzając, a tym samym odzyskując duże ilości wody ograniczamy wydatki związane z rachunkami za dostawę oraz odprowadzanie jej do kanalizacji. Łatwy i tani sposób pozyskiwania wody z deszczu "za darmo" umożliwiają opatentowane, estetyczne, trwałe, bezpieczne w użytkowaniu łatwe w montażu zbieracze wody deszczowej LEMAR.

W zgodzie z naturą
Z przyjemnością sięgniemy po parasol w deszczowy dzień wiedząc, że każdy z nich niesie za sobą rosnące oszczędności dla naszej rodziny. Estetyczne wykonanie oraz pełna integracja ze standardowym systemem rynnowym zapewni Państwu przekonanie o słuszności nowej ekologicznej instalacji.
Wykorzystanie wody deszczowej
- nawadnianie ogrodu i plantacji przydomowych,
- prace porządkowe, mycie samochodu, podłóg itp., pranie,
- spłukiwanie WC,
- miękka i odstana wyjątkowo nadaje się do podlewania podlewanie roślin w szklarniach i tunelach foliowych,
- napełnianie oczek wodnych, basenów kąpielowych, zbiorników ppoż.,
- używanie podczas budowy domu.
Zalety zastosowania ekologicznej instalacji LEMAR
- obniżenie kosztów przy stale rosnących cenach wody,
- zwolnienie od wprowadzonego od niedawna w niektórych miastach, podatku od deszczówki,
- odciążenie miejskich systemów kanalizacji burzowej,
- ochrona zasobów wód gruntowych,
- lepszy rozwój roślin podlewanych deszczówką,
- mniejsze zużycie środków piorących stosowanych do prania,
- zmniejszenie zanieczyszczenia środowiska naturalnego: wyłączone silniki, filtry, przepompownie, itp.
- jako woda "miękka" jest zalecana do spłukiwania sanitariatów, zasilania pralek, myjni (mniejsze zużycie detergentów), napełniania instalacji CO (nie wytrąca się kamień).
Zasada działania
Zbieracz wody montuje się na wysokości najwyższego poziomu wody w zbiorniku. Po zapełnieniu zbiornika nadmiar wody zostanie odprowadzony z Państwa posesji specjalnym króćcem przelewowym do studzienek. Na okres zimowy należy odkręcić nakrętkę w wylewką, wyjąć wkład i założyć nakrętkę bez wylewki. Zbiorniki mogą być ustawiane w dowolnych miejscach ogrodu, czy nawet bezpośrednio w szklarni, tunelu (wodę mamy "pod ręką"). Estetyczne wykonanie praktycznie nie zaburza standardowego wyglądu systemu rynnowego.
Korzystajmy z deszczówki – życiodajnego daru natury
SCHEMAT INSTALACJI - 1
W schemacie nr 1 przedstawiono odzysk wody deszczowej do zbiornika naziemnego za pomocą rury 40 mm z zaworem kulowym umieszczonym na przewodzie doprowadzającym deszczówkę do zbiornika. Zaletą tego systemu jest to, że w dowolnym momencie możemy odciąć dopływ wody deszczowej do zbiornika, kierując ją tym samym do kanalizacji deszczowej.
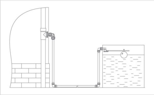
SCHEMAT INSTALACJI - 2
W schemacie nr 2 przedstawiono kompleksowy system do zagospodarowania wpdy deszczowej z zastosowanym zaworu pływakowego zamontowanego w zbiorniku gromadzącym wodę. Zasada działania: Podczas opadu deszczu woda przedostaje się do odpływu w zbieraczu wody 110 a następnie skierowana jest bezpośrednio do zbiornika wody. Po napełnieniu zbiornika, tj uzyskaniu na zaworze pływakowym pozycji "stop" woda automatycznie zostaje skierowana do dalszej części rury spustowej (poniżej zbieracza wody) i odprowadzona do kanalizacji deszczowej.
Wodę za zbiornika można odbierać ręcznie poprzez zawór zamontowany w zbiorniku lub za pomocą pompy umiejscowionej w zbiorniku. W drugim przypadku możemy używać zgromadzonej wody za pomocą węża ogrodowego.
źródło i zdjęcia: Lemar