Marek Żelkowski: Budynek powstał w Szczecinie na Prawobrzeżu kilka dobrych lat temu. Od tamtego czasu zrealizował pan już wiele innych ciekawych projektów. Dlaczego więc będziemy rozmawiać akurat o tym domu?
Piotr Błażejewski: Powodów jest kilka. Ale po kolei. Działka była i jest interesująca – ma nieregularny kształt, ciekawy starodrzew… a ponadto położona jest w specyficznym miejscu w pobliżu jednej z tras wylotowych z miasta. Jednak w tamtym czasie dojazd do terenu przyszłej budowy można określić tylko jednym słowem – marny. A pod względem otoczenia architektonicznego była to prawdziwa pustynia. Powstawał tam wówczas wyłącznie salon samochodowy, o którym za chwilę wspomnę szerzej.
Dzisiaj teren zupełnie się zmienił. Przez lata pojawiło się tam kilka budynków. Wszystkie związane są z użytecznością publiczną. A tak na marginesie… część z nich projektowałem. Zdecydowałem się pokazać ten dom, ponieważ jest dobrą ilustracją tego, że proces projektowania jest procesem bardzo subtelnym. Używając przenośni, to prawdziwe szycie na miarę. Jeśli się o tym nie pamięta albo jeśli nie ma się pełnej wiedzy o przyszłym użytkowniku, to mogą pojawić się kłopoty. Powiem o tym szerzej za chwilę, a na razie ograniczę się do stwierdzenia, że projektowałem ten budynek przy nieco innych uwarunkowaniach niż robię to obecnie.
Natomiast gdyby zapytać mnie, czy dzisiaj zaprojektowałbym podobny dom, to bez wahania odpowiedziałbym – tak, ale… ale podszedłbym do procesu tworzenia koncepcji budynku w zupełnie odmienny sposób. Moim zdaniem, sam pomysł bryły budynku oraz rozwiązania funkcjonalne zbytnio się nie zestarzały. Zapewne dlatego, że nie był to projekt robiony na bogato.
Skromna, modernistyczna forma do dzisiaj trzyma się nieźle, nie razi, a co najważniejsze, można z niej korzystać w sposób bardzo wygody. Wróćmy jednak do warunków projektowania, o których wspomniałem na wstępie. Dom powstał jako mieszkanie funkcyjne dla właściciela salonu samochodowego, który projektowałem na tej samej działce.
Mieszkanie funkcyjne? Zechciałby pan rozszyfrować to sformułowanie?
Działka była przeznaczona na działalność gospodarczą i nie można było wybudować na niej zwykłego domu mieszkalnego w rozumieniu prawnym. Formalnie budynek musiał pełnić funkcję służbowego lokum i być przeznaczony dla właściciela salonu samochodowego. Znałem inwestora i wiedziałem, z kim współpracuję. To był człowiek ze ściśle określoną wizją swoich potrzeb.Zanim jednak zaczęliśmy rozmawiać o domu, znacznie więcej czasu poświęciliśmy na rozmowy o projekcie salonu samochodowego. Omówiliśmy ją i przedyskutowaliśmy w najdrobniejszych szczegółach. Konstrukcja miała być na wysokim poziomie technicznym oraz estetycznym. Wiadomo, głównym jej zadaniem była reprezentacyjność. Kiedy na temat salonu, jego konstrukcji oraz rozwiązań funkcjonalnych wiedziałem już niemal wszystko, usłyszałem, że mam… niejako dobudować w pobliżu dom mieszkalny – mieszkanie funkcyjne.
Można powiedzieć, że jako projektant dostał pan dużą swobodę.

Kiedyś zostałem poproszony o zaprojektowanie domu przez inwestora, który mieszkał w nieco ponad czterdziestometrowym mieszkaniu. Zacząłem konsultacje i przymiarki. Spotykaliśmy się kilka razy i doszliśmy do 560 m2!
Musiałem wziąć pod uwagę poziom wód gruntowych oraz niekorzystne warunki gruntowe, a zatem brak możliwości podpiwniczenia oraz ograniczoną powierzchnię i wysokość zabudowy. Wydawało mi się wówczas, że inwestor dający taką swobodę projektantowi jest inwestorem idealnym, wymarzonym! Płaci za moją fantazję architektoniczną i nie narzuca prawie żadnych ograniczeń!
Pełen entuzjazmu zacząłem więc prace projektowe. Forma salonu samochodowego była dominująca na tym terenie, a zatem musiałem nawiązać do jego bryły. Trzeba było natomiast użyć innych materiałów. Wobec braku ograniczeń ze strony inwestora, projektowałem tak, jak projektowałbym dla siebie. Spełniłem też ogólne oczekiwania klienta, a dodatkowo wyraźnie oddzieliłem część sypialną od dziennej.
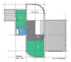
Ponieważ przez cały czas martwiła mnie ograniczona ilość miejsca na działce oraz brak możliwości stworzenia tradycyjnie pojętej części rekreacyjno-ogrodowej, wymyśliłem duży taras na piętrze. Został on zaprojektowany w taki sposób, aby możliwe było odizolowanie się od sąsiadującego z nieruchomością autosalonu i trasy wylotowej z miasta.
W budynku przewidziałem również antresolę nad salonem. Ważne było dla mnie, aby zajmowała ona ściśle określoną powierzchnię. Chodziło o to, żeby nie sprawiała wrażenia "dziury w suficie", tylko współtworzyła otwartą przestrzeń, zamkniętą dużym przeszkleniem w narożniku pokoju dziennego. Owo przeszklenie świadomie nie zostało zaplanowane od strony południowej. Uważam bowiem, że znacznie większym dyskomfortem dla mieszkańców jest przegrzanie pomieszczeń w czasie miesięcy letnich, niż ewentualne straty ciepła zimą. Te można przecież bez większego trudu skompensować.
|   | 
| W dużym przeszkleniu pokoju dziennego znajdują się drzwi prowadzące do ogrodu | 
I jaka była reakcja inwestora na pański projekt?
Nie ma na to pytanie prostej odpowiedzi. A to dlatego, że prawdziwych lokatorów domu poznałem dopiero wówczas, kiedy projekt dawno już powstał, a nawet uzyskał pozwolenie na budowę. Zdecydowanie zbyt późno! Okazało się, że to nie właściciel salonu samochodowego miał zamieszkać w nowym budynku, tylko jego córka z mężem i dziećmi. Laik mógłby wzruszyć ramionami i stwierdzić: A co to właściwie za różnica? Tymczasem, różnica jest ogromna! Tak naprawdę to wszystko zmieniało…

Uważam, że znacznie większym dyskomfortem dla mieszkańców jest przegrzanie pomieszczeń w czasie miesięcy letnich, niż ewentualne straty ciepła zimą.
To właśnie wówczas uświadomiłem sobie z całą mocą, że architekt nie może pozwolić sobie na podjęcie wyzwania jakim niewątpliwie jest projektowanie domu bez długiej, poważnej i wielowątkowej rozmowy z przyszłymi mieszkańcami.
A wracając do początku mojej wypowiedzi. Dzisiaj również stworzyłbym budynek o podobnym układzie funkcjonalnym i przestrzennym do tego, o którym rozmawiamy, ale postąpiłbym tak tylko wówczas, gdy oczekiwania klienta byłyby właśnie takie. Inna droga najczęściej prowadzi architekta do klęski! Moje szczęście polega na tym, że mieszkająca w budynku córka właściciela salonu, pomimo początkowych wątpliwości, zdołała z czasem polubić moją koncepcję i odnaleźć się w niej. Tylko dlatego odważyłem się ten dom pokazać.
Przyszli mieszkańcy zobaczyli gotowy projekt bardzo późno, a w dodatku początkowo nie byli nim zachwyceni. Czy zatem udało się im wprowadzić jakieś zmiany?
Oczywiście. Ale nie były to zmiany duże, gdyż musiały polegać na dostosowaniu gotowego już projektu do potrzeb konkretnej rodziny. Takie zabiegi prawie nigdy nie są dobrym rozwiązaniem. Ostatecznie, nie po to zamawia się projekt indywidualny, aby go dostosowywać, tylko po to, aby realizować marzenia. Na szczęście dobry los sprawił, że lokatorzy domu go polubili. Są tam dzisiaj szczęśliwi. Właścicielka podkreśla często, że mieszka się im wspaniale… I mówiąc szczerze, jest to dla mnie największym komplementem.

Warto pamiętać, że duży dom nie zawsze jest tym, czego potrzebujemy.
Projekt został poddany jakimś znaczącym modyfikacjom?
Nie! Inwestorka ozdobiła go tylko według swojego gustu. Podkreślam, żadnych istotnych zmian w konstrukcji. Bryła była ta sama, a jednak dom był zupełnie inny. Każdy ma, oczywiście, prawo do takich przeróbek, ale projektant ma również prawo, aby nie chwalić się później takim obiektem, który powstał niejako wbrew pierwotnej koncepcji.Czy współpraca z inwestorem indywidualnym jest trudna? Co decyduje o tym, że podejmuje się pan projektowania lub rezygnuje ze zlecenia?
Domy mieszkalne dla indywidualnych inwestorów projektuję niezbyt często. Dwa, trzy razy w roku. A decyduję się na podobne zlecenie tylko wówczas, jeśli mam pewność, że będę mógł współpracować z klientem. Ważna jest dla mnie rozmowa wstępna. Muszę poczuć, że nadajemy na tych samych falach. Mówiąc skrótem myślowym, jeśli śmiejemy się z tych samych dowcipów, to wiem że podołam zadaniu i moje propozycje spełnią oczekiwania inwestora. Jeśli nie, to bardzo szybko mogą pojawić się nieporozumienia i kłopoty.

Mówiąc skrótem myślowym, jeśli śmiejemy się z tych samych dowcipów, to wiem że podołam zadaniu i moje propozycje spełnią oczekiwania inwestora.
A jakie pytania zadaje pan inwestorom podczas konsultacji? Czego musi się pan o nich dowiedzieć?
Bardzo rzadko zdarza się, że zgłaszają się do mnie przypadkowi inwestorzy. Najczęściej z moich usług korzystają ludzie, dla których wykonywałem już wcześniej jakieś prace albo osoby z tak zwanego polecenia. Z częścią inwestorów współpracuję przez lata. W takich przypadkach problemy raczej się nie pojawiają. Znacznie trudniej jest, jeśli mam do czynienia z kimś, kogo zetknął ze mną przypadek.Jedno z pierwszych pytań, jakie wówczas zadaję, brzmi: dlaczego chce pan/pani budować dom? Pragnę poznać motywacje, doświadczenia. Człowiek uczy się przecież na własnych błędach. Jeśli już kiedyś budował, to można uniknąć przynajmniej tych podstawowych.
Ważny jest również etap życia, w którym znajduje się inwestor. Czy jest on na początku swej życiowej drogi, kiedy myśli się o rodzinie, dzieciach i dynamicznie zmierza do obranych celów, czy też może osiągnął już ten etap, w którym ważna jest równowaga oraz wyciszenie, a wir codziennego życia i wyścig ze światem nie pociągają już tak bardzo. To oczywiście są schematy, ale wiedza jest bardzo konkretna i przekłada się na wyobrażenia dotyczące preferowanego, wygodnego sposobu życia.
Proszę zabrać czytelników miesięcznika Budujemy Dom na wirtualny spacer po domu przy salonie samochodowym.
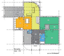
Wejście do budynku, który ma około 260 metrów kwadratowych, usytuowane jest od strony południowej. Nie do końca wierzę w Feng Shui, ale uważam, że taki układ jest prawidłowy i korzystny. Zaraz za drzwiami wejściowymi znajduje się duży przedsionek – wiatrołap. Zmieści się w nim bez trudu kilka osób, można swobodnie zdjąć płaszcz, przywitać się… lub pożegnać.
|   |   Zdjęcie u góry: Wejście do części sypialnej domu znajduje się pod schodami prowadzącymi na antresolę 
 Zdjęcie po lewej: Bryła domu harmonijnie współgra
z jego otoczeniem | 
Bezpośrednio z przedsionka wchodzi się do części dziennej domu, do salonu. Po prawej stronie znajduje się wejście do części sypialnej budynku. Natomiast po lewej udało się wygospodarować miejsce na pomieszczenie gospodarcze – pralnię, suszarnię itp. Po tej samej stronie znajduje się również mała ubikacja. Część sypialna, o której wspomniałem, składa się z właściwej sypialni, garderoby, łazienki oraz pracowni pana domu. Jego pasją jest malarstwo. Potrzebuje zatem swojej zamkniętej przestrzeni, w której może spokojnie tworzyć.
|   | 
| Sypialnia właścicieli domu | 
Pokój dzienny, o wysokości dwóch kondygnacji, jest połączony z otwartą kuchnią i jadalnią. Wielu inwestorów często zastanawia się, na jaki rodzaj kuchni powinni się zdecydować. Odpowiedź jest bardzo prosta. To zależy, w jaki sposób owo pomieszczenie będzie użytkowane oraz jakie są rodzinne preferencje. Jeżeli domownicy lubią wspólnie gotować, jeżeli sprawia im to radość, wówczas warto postawić na otwartość. Trzeba również wziąć pod uwagę, że taka kuchnia wymaga stałego utrzymywania w niej porządku.
|   | 
| Otwarta kuchnia to przede wszystkim propozycja dla osób, które lubią wspólne, rodzinne gotowanie | 
Bardzo istotna dla funkcjonowania omawianego domu jest spiżarnia, przez którą można przejść do garażu. Dzięki niej utrzymanie porządku w kuchni jest łatwiejsze. Produkty spożywcze, przywożone do domu, mogą pozostawać w spiżarce aż do czasu, kiedy będą potrzebne. Wędrując dalej po domu, trafimy do pokoju dziennego. W przeszkleniu zlokalizowane są drzwi prowadzące na niewielki taras otoczony zielenią, izolującą dom od tej części działki, na której znajduje się salon samochodowy.
|   | 
| Na piętrze, po lewej stronie schodów, usytuowane są drzwi prowadzące na taras | 
Czy ma pan jakieś rady dla inwestorów pragnących zamówić projekt indywidualny?
Kiedyś zostałem poproszony o zaprojektowanie domu przez inwestora, który mieszkał w nieco ponad czterdziestometrowym mieszkaniu. Zacząłem konsultacje i przymiarki. Spotykaliśmy się kilka razy i doszliśmy do 560 m2! Kosmos, ale w latach dziewięćdziesiątych nie była to taka rzadkość, jak obecnie.Chcąc jednak zaprojektować taki metraż w dzielnicy, w której dominowało stare budownictwo jednorodzinne, należało trochę się wysilić. Przede wszystkim trzeba było rozbić bryłę budynku na drobniejsze elementy. Zabieg taki pozwolił ukryć rzeczywistą wielkość domu. Chodziło o to, aby każdy, kto ogląda go z zewnątrz, widział za każdym razem tylko kawałek domu. Udało się! Ale tu pewna anegdota i przestroga.
Po zakończeniu inwestycji, zostałem zaproszony na spotkanie towarzyskie, rodzaj parapetówki. Towarzyszącą mi osobę zaniepokoiło milczenie właściciela domu. Siedział i prawie się nie odzywał. Chcąc rozładować atmosferę, zapytałem gospodarza, czy jest zadowolony z ukończonej inwestycji. W odpowiedzi usłyszałem: "Tak, panie Piotrze, jestem bardzo zadowolony, ale jednocześnie tak zmęczony tą budową, że już nie mam siły się cieszyć".
Warto pamiętać, że duży dom nie zawsze jest tym, czego potrzebujemy. Lepiej dostosować metraż inwestycji do swoich rzeczywistych potrzeb, a nie do grubości portfela! Nie warto budować wielkiego domu, jeśli wystarczy nam mniejszy.
Inwestor powinien pamiętać, że każda decyzja, jaką podejmuje na etapie projektowania, będzie skutkowała najpierw kosztami na etapie budowy, a później przez lata kosztami eksploatacyjnymi. A prawda jest taka, że znacznie trudniej projektuje się funkcjonalny, przyjazny, wygodny dom o powierzchni 120 metrów kwadratowych, niż dom, który ma tych metrów 500!
Jak pan postrzega polskie budownictwo jednorodzinne? Czy ci, którzy narzekają, że krajobraz w naszym kraju jest zaśmiecony, mają rację?
W Szczecinie istnieje dzielnica domków, która powstała jeszcze przed II wojną światową, jako zwarty, spójny architektonicznie kompleks. Bardzo podobny w założeniach zespół urbanistyczny można zobaczyć również w Berlinie. Do czasów, kiedy domy użytkowali Niemcy, zachowały one pewną spójność wizualną i pierwotny charakter nadany im przez projektantów.Obecnie, każdy z tych segmentów jest przebudowany, przerobiony i ozdobiony w taki sposób, aby odróżniał się od pozostałych. Tymczasem podobne dzielnice w stolicy Niemiec zachowały swój pierwotny charakter. Myślę, że jest to najlepsza ilustracja problemu, który pan zasygnalizował. W naszym kraju, każdemu zależy na odróżnieniu się, na indywidualności. W przypadku ładu przestrzennego… nie jest to, niestety, korzystne zjawisko. Ale walczenie z nim za pomocą zakazów i nakazów to utopia.
Na przykład tam, gdzie jest administracyjny nakaz stosowania stromych dachów, zawsze można zaprojektować dach płaski, przy którym jakiś architektoniczny bajer będzie udawał owe wymagane skosy. Jestem przeciwny takim rozwiązaniom! Architektura nie powinna niczego udawać! Plany zagospodarowania przestrzennego mają natomiast pomagać, a nie przeszkadzać w projektowaniu. Nie jest sztuką stworzenie listy zakazów i nakazów.
Warto natomiast wiedzieć, w jakim celu owe ograniczenia się tworzy. Czy to budowanie nowej jakości, czy może tylko kaprys decydentów? W architekturze ważne są trzy elementy: funkcja, forma, konstrukcja. Jeżeli nie współgrają ze sobą, a tak dzieje się, gdy projektant zmuszony jest wstawiać do projektów wspomniane architektoniczne bajery, to mamy do czynienia ze złą architekturą. Po prostu złą!
 
                             
 
 
 
 
 
 
 
 
 
