HomeKONCEPT-86 - dom parterowy z minimalistycznymi rozwiązaniami projektowymi

HomeKONCEPT-86 - dom parterowy z minimalistycznymi rozwiązaniami projektowymi

Niewielki HomeKONCEPT 86 o powierzchni użytkowej 42,3 m2 to wyjątkowa propozycja skierowana do miłośników domów parterowych z płaskim dachem. Bryła domu zaprojektowana w kształcie prostopadłościanu przyciąga uwagę minimalistycznymi rozwiązaniami architektonicznymi oraz ciekawą aranżacją elewacji.

Fasada domu została zaprojektowana z kontrastujących ze sobą materiałów: białego tynku oraz wysokiej jakości drewna elewacyjnego, o intensywnej brązowej barwie. W bryłę budynku wkomponowano praktyczną wiatę garażową, którą od strony zewnętrznej zamyka ażurowa ściana z belek.

Częściowo zadaszony taras został delikatnie ukryty w podcieniu, a na przedłużeniu strefy dziennej urządzono kuchnię letnią. Została ona wyposażona w blat roboczy oraz urządzenia kuchenne, które pozwolą przyrządzić uroczystą kolację na świeżym powietrzu. Panoramiczne okna wkomponowane w elewację, gwarantują doskonałe doświetlenie wnętrz. Sąsiadująca z tarasem wbudowana balia ogrodowa, pełni funkcję domowego SPA i pozwala ukoić zmysły po pracowitym dniu.

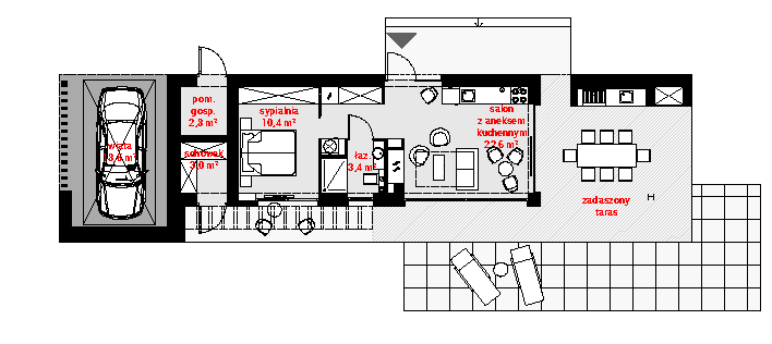
Rzut parteru HomeKONCEPT 86
Rzut parteru HomeKONCEPT 86

Kameralne wnętrze spełni oczekiwania pary, szukającej wygodnego, całorocznego domu, lub planującej spędzanie romantycznych weekendów za miastem. Składa się ono z przestronnego salonu z aneksem kuchennym oraz jadalni umieszczonej przy panoramicznym, narożnym oknie.

Przechodząc dalej znajdziemy się w uroczej sypialni z pięknym widokiem na ogród i najbliższe otoczenie domu. Obok wkomponowano łazienkę, a całość uzupełniają dwa praktyczne pomieszczenia gospodarcze. Ich obecność pozwoli utrzymać porządek w całym budynku oraz ułatwi przechowywanie sprzętu turystycznego i ogrodniczego.

Więcej informacji na temat projektu zamieściliśmy na stronie internetowej www.HomeKONCEPT.com.pl 

Komentarze

Gość Marek
11-09-2022 21:44
Witam! Czy w zmianach w projekcie można uwzględnić rezygnację z garażu i zabudowę ścianami i oknami zadaszonego tarasu tak aby zyskać dodatkowe pomieszczenie i zwiększyć powierzchnię zabudowy budynku ? Pozdrawiam Marek
Wiecej na Forum BudujemyDom.pl
Najnowsze artykuły
Czytaj tak, jak lubisz
W wersji cyfrowej lub papierowej
Moduł czytaj tak jak lubisz