Przykładowe koszty i rozplanowanie instalacji centralnego odkurzania

Przykładowe koszty i rozplanowanie instalacji centralnego odkurzania

Przedstawiamy 4 przykładowe koszty i rozplanowanie systemów centralnego odkurzania - tradycyjne oraz z wężem chowanym w ścianie.

1) WYCENA STANDARDOWEJ INSTALACJI CENTRALNEGO ODKURZANIA FIRMY TOPVAC

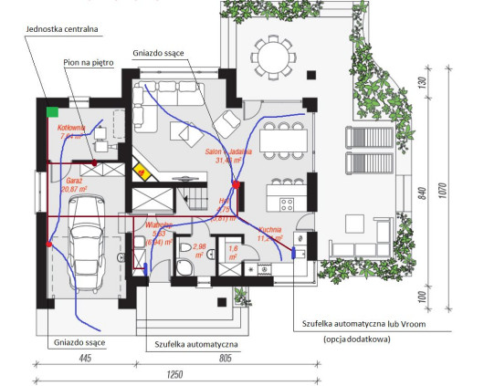
Przykładowy projekt standardowej instalacji centralnego odkurzania w domu z poddaszem użytkowym (proj. ARCHON+). Rozplanowanie według firmy TopVac - rzut parteru
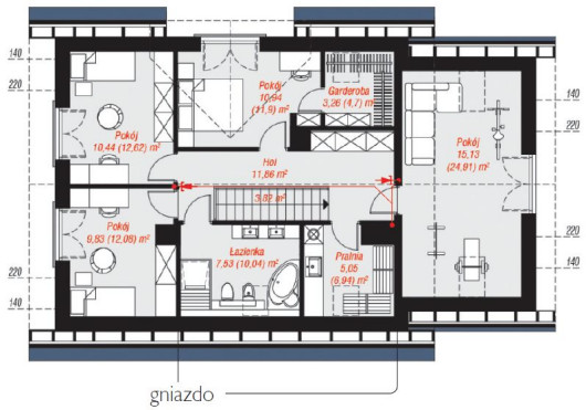
Przykładowy projekt standardowej instalacji centralnego odkurzania w domu z poddaszem użytkowym (proj. ARCHON+) - rzut poddasza

Topvac - projekt standardowej instalacji centralnego odkurzania w domu z poddaszem użytkowym (proj. ARCHON+).

Koszty netto:

  • instalacja (zestaw instalacyjny, gniazda ssące Vega, szufelka automatyczna z elementami podłączeniowymi) 781 zł;
  • jednostka centralna (GREENline 150 z zestawem do sprzątania Komfort z włącznikiem on/off na rękojeści) 2110 zł
  • elementy dodatkowe (Vroom, szufelka automatyczna, Wally Flex, podłączenie do szufelki automatycznej): 1066 zł.

Łącznie 3957 zł.

2) WYCENA INSTALACJI CENTRALNEGO ODKURZANIA Z WĘŻEM CHOWANYM W ŚCIANIE FIRMY TOPVAC

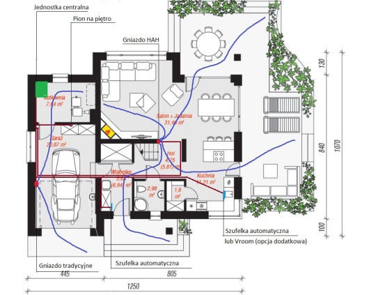
Przykładowy projekt centralnego odkurzania z wężem chowanym w ścianie w domu z poddaszem użytkowym (proj. ARCHON+). Rozplanowanie według firmy TopVac - rzut parteru
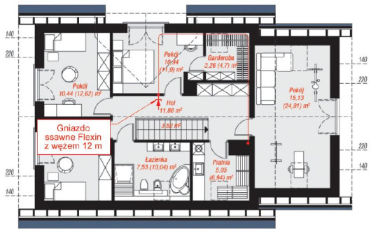
Przykładowy projekt centralnego odkurzania z wężem chowanym w ścianie w domu z poddaszem użytkowym (proj. ARCHON+). Rozplanowanie według firmy TopVac - rzut poddasza

Topvac - projekt centralnego odkurzania z wężem chowanym w ścianie, w domu z poddaszem użytkowym (proj. ARCHON+).

Koszty netto:

  • instalacja (zestawy instalacyjne, zestaw do sprzątania HAH Husky, rękojeść do węża HAH, gniazda ssące, węże HAH, szufelka automatyczna z elementami podłączeniowymi) 3482 zł;
  • jednostka centralna (GREENline 150) 1863 zł;
  • elementy dodatkowe (Vroom, szufelka automatyczna, Wally Flex, podłączenie do szufelki automatycznej) 1066 zł.

Łącznie 6411 zł.

3) WYCENA STANDARDOWEJ INSTALACJI CENTRALNEGO ODKURZANIA FIRMY SANTECH

Przykładowy projekt standardowej instalacji centralnego odkurzania w domu z poddaszem użytkowym (proj. ARCHON+). Rozplanowanie według firmy Santech - rzut parteru
Przykładowy projekt standardowej instalacji centralnego odkurzania w domu z poddaszem użytkowym (proj. ARCHON+). Rozplanowanie według firmy Santech - rzut poddasza

Santech - projekt standardowej instalacji centralnego odkurzania w domu z poddaszem użytkowym (proj. ARCHON+).

Koszty netto:

  • instalacja (orurowanie, płytka montażowa z osłoną do tynkowania, przewody) 781 zł;
  • jednostka centralna i urządzenia pomocnicze (AEG 860 cyklon + worek odwrócony, zestaw do sprzątania Electrocomfort 9 m, gniazda ssące, wyrzutnia powietrza) 3222 zł;
  • elementy dodatkowe (zestaw montażowy do szufelki automatycznej, automatyczna szufelka VP) 240 zł.

Łącznie 4243 zł.

4) WYCENA INSTALACJI CENTRALNEGO ODKURZANIA Z WĘŻEM CHOWANYM W ŚCIANIE FIRMY SANTECH

Przykładowy projekt centralnego odkurzania z wężem chowanym w ścianie w domu z poddaszem użytkowym (proj. ARCHON+). Rozplanowanie według firmy Santech - rzut parteru
Przykładowy projekt centralnego odkurzania z wężem chowanym w ścianie w domu z poddaszem użytkowym (proj. ARCHON+). Rozplanowanie według firmy Santech - rzut poddasza

Santech - projekt centralnego odkurzania z wężem chowanym w ścianie, w domu z poddaszem użytkowym (proj. ARCHON+).

Koszty netto:

  • instalacja (orurowanie, płytka montażowa z osłoną do tynkowania, przewody, zestaw instalacyjny Flex-in) 2722 zł;
  • jednostka centralna i urządzenia pomocnicze (S2500 Split cyklon + separacja włosów, zestaw do sprzątania Electrocomfort 9 m, gniazda ssące, zestaw do sprzątania Flex-in 9 m, wąż giętki Flex-in 12 m, wyrzutnia powietrza, tłumik hałasu) 5384 zł;
  • elementy dodatkowe (zestaw montażowy do szufelki automatycznej, automatyczna szufelka VP) 240 zł.

Łącznie 8346 zł.

Małgorzata Kolmus
fot. otwierająca: TopVac

Małgorzata Kolmus
Małgorzata Kolmus
Autorka artykułów związanych m.in. z wykańczaniem i urządzaniem ogrodów oraz wnętrz. Zwolenniczka koncepcji slow design w urządzaniu wnętrz, mającej na uwadze świadomy dobór produktów i indywidualne dopasowywanie rozwiązań. Prywatnie zajmuje się malarstwem, które jest jej największą pasją.
Komentarze

Najnowsze artykuły
Czytaj tak, jak lubisz
W wersji cyfrowej lub papierowej
Moduł czytaj tak jak lubisz