Pierwszy dom ma być ostatnim

Pierwszy dom ma być ostatnim

Ania i Szymon przyszłościowo myśleli o swoim domu pod miastem. Postanowili go zbudować i urządzić w taki sposób, żeby był pierwszy i zarazem ostatni. Wydatnie pomagał im przy tym ojciec Ani, organizując i nadzorując wszelkie prace budowlane.

Dom murowany, piętrowy z garażem; dwuwarstwowe ściany z poryzowanych pustaków ceramicznych gr. 24 cm i styropianu gr. 15 cm; dach pokryty dachówką ceramiczną.

  • Powierzchnia działki: 1400 m2.
  • Powierzchnia domu: 173 m2.
  • Powierzchnia garażu: 34,50 m2.
  • Roczne koszty utrzymania budynku: 12 386 zł.

O swoim domu, wybranym spośród tysięcy gotowych koncepcji w Internecie, właściciele mówią - nie zamyka nam drogi, tylko otwiera różne możliwości. Między innymi jest w nim wygodna strefa gościnna (Ania pochodzi z Wieliczki, ale na stałe przeniosła się do centralnej Polski, więc potrzebuje dla swoich bliskich noclegowego miejsca). Ponadto budynek zapewni parze wygodne życie także po powiększeniu rodziny o dwoje albo troje dzieci.

JAK W RODZINNYCH STRONACH ANI

Ania i Szymon nie mieli szansy razem szukać działki ani gotowego projektu, ponieważ poznali się niedługo po tych pierwszych ważnych decyzjach (ona podjęła je sama). Dopiero po zaręczynach, ręka w rękę, ruszyli z budową.

Widok na dom od strony ogrodu
Choć w bryle domu jest sporej wielkości garaż na 2 samochody i pełne piętro, nie wydaje się ona zbyt duża i ciężka. To, że wygląda zgrabnie i lekko Ani szczególnie się spodobało. Kolejnym elementem, który przypadł jej do gustu, były daleko wysunięte gzymsy, spore narożne okna i pas okładziny z drewna.

- Najpierw starałam się wybrać ładne i dogodne miejsce do przyszłego życia - opowiada Ania. - Brałam pod uwagę, że może stać się docelowe. Kiedy wreszcie tutaj trafiłam, zagrały sentymenty. Okolica przypomina mi krajobrazy wokół Wieliczki! Na dodatek oglądałam tę działkę w sierpniowy dzień o zachodzie słońca, a dla mnie to magiczna chwila.

Bardziej pragmatyczne aspekty też brałam pod uwagę. Oglądając różne parcele w tej okolicy, widziałam, że dużym problemem jest woda podskórna, która pojawia się w nie w tym momencie, kiedy potrzeba. Szczególnie w zimie i wiosną jest jej za dużo. Gliniasta ziemia wtedy jej nie chłonie i jest mokra, z kolei w lecie staje się tak zbita i sucha, że nawet trawa nie chce na niej rosnąć. Przypuszczałam, że przy takich warunkach glebowych czeka mnie zbudowanie solidnego odwodnienia wokół domu.

Klamka w końcu jednak zapadła i kupiłam nasłonecznioną działkę o powierzchni 1400 m2. Znajduje się ona jednak poza gęsto zabudowanymi miejscowościami, dlatego musieliśmy z Szymonem dołożyć dużo starań i uzbroić się w cierpliwość, żeby dociągnąć do działki media. Chociaż sieć gazowa była dosłownie w drodze przylegającej do działki i 10 m od domu, załatwianie formalności trwało dłużej, niż budowa.

Pozytywny był natomiast sam fakt, że gaz jest blisko i możemy go wykorzystać. Długo nie wiedzieliśmy, kiedy trafi pod nasz dach kanalizacja zbiorcza, więc wybudowaliśmy szambo. Okazało się niepotrzebne, bo tuż przed przeprowadzką wykonano przyłącze. Na szczęście, szambo przydaje się teraz do odprowadzania deszczówki z dachu.

Pas oblicówki optycznie obniża wysoką piętrową bryłę
Tata, prowadzący budowę, odradzał użycie drewna na elewacjach i proponował zastąpienie go tynkiem w innym kolorze. Para uznała, że nie zastąpi on "ciepła" drewna i że dom nie musi być tylko praktyczny. Pas oblicówki optycznie obniża wysoką piętrową bryłę. Urozmaicają ją jeszcze wspomniane gzymsy pod dachem, wykusze i balkony przy jadalni i gabinecie, obwiedzione narożnym tarasem. Dach pokryto dachówką ceramiczną w kolorze antracyt. Kolor okleiny na plastikowych ramach okien dobrano do koloru oblicówki.
Taras biegnie wzdłuż południowej i zachodniej ściany
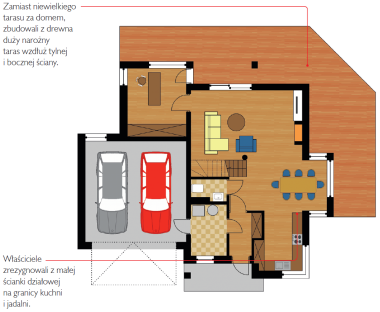
W projekcie gotowym taras znajdował się jedynie z tyłu budynku, jednak właściciele utworzyli większy narożny podest z ryflowanych desek. Biegnie wzdłuż południowej i zachodniej ściany. Na niezadaszoną część podestu można wyjść z jadalni, natomiast wnęka z meblami wypoczynkowymi, zadaszona fragmentem stropu, dostępna jest z salonu i gabinetu.

DOM TYLKO Z PIĘTROWĄ BRYŁĄ

Przystępując do wybierania projektu, Ania preferowała domy z pełnym piętrem. Żartuje, że lubi wysokich mężczyzn i dlatego wszystkie kondygnacje muszą mieć wygodną wysokość. Dokładnie określiła również stylistykę bryły - celowała w nowoczesną z dodatkiem drewna, kolorystykę - biel, czerń i kolory natury, oraz układ wnętrz - chciała, żeby przechodnia jadalnia była między otwartą kuchnią (koniecznie z widokiem na wjazd) i salonem, a przy nich znajdował się narożny taras skierowany na zachód i oddzielny gabinet (z możliwością zaadaptowania na biuro).

Kiedy wreszcie znalazła odpowiedni projekt, proponowane rozwiązania architektoniczne i techniczne skonsultowała z tatą, który ma w swoim zawodowym dorobku budowę tak wielu domów jednorodzinnych, że ufała jego doświadczeniu. Zaproponował od siebie pewne zmiany, lecz Ania nie ze wszystkimi się zgodziła.

Salon ze schodami
Ania i Szymon preferują naturalne materiały wykończeniowe, ale celowo ograniczyli ich ilość w budynku, podobnie jak zrobili to z kolorystyką. Posadzki wykończyli drewnianym parkietem, ułożonym "na pokład". Drzwi i zabiegowe schody dywanowe też są drewniane i chociaż powstały z różnych gatunków drewna (sosny, dębu), nadali im identyczny kolor - orzecha amerykańskiego. Na ścianie w holu i na obudowie kominka zastosowali okładzinę, imitującą cegłę klinkierową.
Jadalnia
Jadalnia znajduje się w wykuszu, oświetlonym dużymi oknami tarasowymi, pod którymi zainstalowano grzejnik kanałowy. W celu wykreowania przytulnej atmosfery, Pani Domu ubrała przeszklenia w firanki i zasłony, a do kuchni wybrała rolety rzymskie. Są proste, więc pasują do nowoczesnego wystroju. Tak jak marzyła Ania, strefa jadalna jest przechodnia i mieści się między kuchnią i salonem.

- Chociaż garaż w bryle domu jest duży i mieści 2 auta, tata namawiał, żeby powiększyć przestrzeń parkingową - opowiada właścicielka. - Zalecał wydłużyć dach nad garażem i oprzeć dodaną frontową część na dwóch kolumnach, formując w ten sposób wiatę zintegrowaną z budynkiem. Nad garażem miał powstać kolejny taras. Po takiej rekomendacji oddałam projekt do adaptacji. Jednak podczas budowy jeszcze raz rozważyłam z Szymonem tę zmianę i ostatecznie... ją odrzuciliśmy. Uznaliśmy, że bryła domu za bardzo się zmieni, no i utworzenie wiaty podwyższy koszt budowy. Do parkowania aut gości przeznaczyliśmy wybrukowany podjazd.

Własną metamorfozę przeprowadziliśmy natomiast na tarasie, który przekształciliśmy w narożny i wykończyliśmy drewnem identycznym, jak na fragmencie elewacji. Tata odradzał nam użycie drewna na ścianach, proponując tynk w innym kolorze. Zrobiliśmy komputerową wizualizację i dopiero na niej zobaczyliśmy, jak bardzo budynek straciłby na urodzie. Nie bez powodu w projekcie od razu spodobał mi się pas drewna na poziomie piętra oraz proporcjonalne podziały tej okładziny i tynku. Za ciekawe urozmaicenie wysokich ścian uznałam daleko wysunięte gzymsy dachu i duże narożne okna. Kolorystyka też mi pasowała. Antracytowy kolor dachówki kontrastuje z białym tynkiem, a ich surowość ociepla drewno. I tu jest ten smaczek!

Szanuję wiedzę taty, lecz zdążyłam wyrobić sobie własne wyobrażenie o rodzinnym domu. Jeszcze mieszkając z rodzicami w Wieliczce, często chodziłam z tatą po budowach, chłonąc rozmaite rozwiązania i pomysły. Poukładałam je w głowie. Ten dom unika szeregu błędów, jakie widziałam kiedyś w innych.

Projekt: E124, PW75 Studio Architektury, autor projektu Mariusz Cendecki; Rzut parteru i parteru po zmianach

 

BUDOWA I INSTALACJE

Budowa i wykończenie pod klucz trwały 14 miesięcy. Korzystne dla budżetu okazało się zamawianie elementów wykończenia na południu Polski. Tam ceny materiałów i usług są niższe, niż w centrum kraju.

- Dom zaczęliśmy budować... razem z naszym związkiem, bo start budowy nastąpił w okresie narzeczeństwa - dodaje Szymon. - Zaakceptowałem lokalizację działki i projekt - sam nie wybrałbym lepiej. Skoro siłą rzeczy ominęły mnie pewne procesy decyzyjne, starałem się uczestniczyć w kolejnych i wspierać Anię. Zresztą od początku nie była sama - pomoc taty była nie do przecenienia. Podczas budowy dała nam absolutny komfort, bo za nas zarządzał wykonawcami, których sam dobierał oraz organizował materiały. Jesteśmy mu za to wdzięczni! Doskonale rozwiązał domowe instalacje. Dopilnował przygotowania przewodów pod wentylację mechaniczną, więc unikniemy kucia nowych ścian i sufitów. W przyszłości kupimy dobrą centralę wentylacyjną.

Choć sami, ze względu na duże koszty, nie chcieliśmy centralnego odkurzacza, tata wiedział, że na etapie budowy powinien przynajmniej położyć rurociąg i tak zrobił. Potem, widząc że ociągamy się z wyposażeniem instalacji, w ramach niespodzianki, kupił odkurzacz typu split i resztę osprzętu. Jego prezent ułatwia teraz sprzątanie.

Narożne okno w kuchni
Właścicielom zależało, żeby wystrój każdego pomieszczenia korespondował z resztą budynku. Kompletując meble, szli śladem minimalizmu skandynawskiego. Dobierając kolory uważali, żeby nie męczyły oczu i głowy. Króluje biel i czerń oraz ciepłe drewno i cegła. Efektownym detalem architektonicznym w kuchni jest duże narożne okno.
Drewniane schody dywanowe
Drewniane schody dywanowe dekoracyjnie wiszą nad fragmentem salonu. Ania i Szymon poczynili zabiegi, żeby wyglądały lekko. Wkrótce zabezpieczą je delikatną balustradą. Na zewnętrznej ścianie, przy systemowym kominie, zamontowali wkład kominkowy z grawitacyjnym rozprowadzaniem ciepła.

Nikt z nas nie rozważał innego sposobu ogrzewania, niż gazem ziemnym. Mamy kocioł kondensacyjny i zasobnik o poj. 150 l oraz różne grzejniki i podłogówkę. Przy największych przeszkleniach sprawdzają się grzejniki kanałowe. Wystarczają do ogrzania przestrzeni wspólnej na parterze i dzięki nim uniknęliśmy wieszania tu grzejników na ścianach. Duże powierzchnie podłóg celowo wykończyliśmy drewnem, bo dają większą przytulność, niż posadzki z gresem. Tylko wiatrołap, hol, kuchnia i łazienki mają podłogówkę.

Urządzanie wnętrz to głównie zasługa żony, ale ona śmieje się, że słusznie stopowałem jej niektóre zapędy. Znalazła w Internecie program komputerowy i w nim kreowała szczegóły. Najfajniejszą zabawę miała podczas wykańczania łazienek.

Ceny niektórych przyłączy, instalacji, urządzeń:

  • Przyłącze gazu - 3500 zł.
  • Instalacja c.o. - 35 000 zł.
  • Wkład kominkowy - 2000 zł,
  • obudowa - 3500 zł.

 

Koszty, gdzie można zaoszczędzić na eksploatacji?

Utrzymanie domu rocznie kosztuje 12 386 zł.

Właściciele nie lubią przebywać w przegrzanych pomieszczeniach i w swoich utrzymują temperaturę 20°C. Na gaz z sieci wydają, łącznie z przygotowaniem c.w.u. w zasobniku o poj. 150 l, 7000 zł rocznie. W kominku rozpalają ogień kilka razy w roku.

Łączne opłaty za elektryczność wynoszą 2604 zł, a za wodę z wodociągu i odprowadzanie ścieków do sieci kanalizacji zbiorczej - 1236 zł. W małym gospodarstwie domowym starannie segreguje się śmieci, usługę ich wywozu wyceniono w gminie na 9 zł za osobę, co rocznie daje koszt 216 zł.

Inne stałe opłaty: ubezpieczenie budynku 630 zł, podatek od nieruchomości 700 zł.

 

Trafne decyzje i rady właścicieli

  • Utworzenie wysuniętych gzymsów pod dachem były zmorą dla wykonawców. Nawet rzucili pomysł, żeby z nich zrezygnować. Na to się nie zgodziliśmy, bo mają znaczenie dla wyglądu bryły, dodają jej uroku. Bez nich pewnie nie wybralibyśmy tego projektu. Uprzedzamy, że ten element nie jest łatwy do wykonania, a jeszcze trudniejszy jest do wykończenia. Potrzebni są dobrzy fachowcy. Kłopotliwe było również mocowanie na elewacjach, szczególnie na narożnikach, okładziny z drewna oraz dobieranie identycznej kolorystyki tego materiału na zewnątrz i wewnątrz. Chcieliśmy, żeby w całym domu i bez względu na rodzaj użytego drewna, miało ono jeden kolor – orzecha amerykańskiego. Tymczasem każdy producent lakierów i bejc ma własny wzornik i odcień, no i zaczęły się problemy. Dopasowanie lakieru na drzwiach wewnętrznych do koloru schodów i parkietu nie obyło się bez powrotu do stolarza i przemalowywania. Mamy dużo drewna, ale nie boimy się konserwacji.
  • Układ i ilość pomieszczeń mieszkalnych jest idealna. Przy naszej sypialni na piętrze mamy garderobę i łazienkę, dodatkowo balkon z leżankami do opalania, dający widok na zachód słońca. Obok są jeszcze 2 pokoje dla dzieci i łazienka, a nad garażem pomieszczenie nazywane przez nas "hobby", które na co dzień służy do ćwiczeń i jako zaplecze gospodarcze, doraźnie – dla gości. Za mało jest jedynie pomieszczeń gospodarczych. Dlatego na sprzęt ogrodniczy i sportowy zbudowaliśmy w ogrodzie składzik.

Lilianna Jampolska

Lilianna Jampolska
Lilianna Jampolska
Od ponad dwudziestu lat w przystępny sposób opisuje domy i ogrody Czytelników. Współpracowała z kilkoma znanymi poradnikami budowlanymi. Jest autorką tekstów i zdjęć. W wolnych chwilach z przyjemnością zajmuje się własnym ogrodem. Metodą permakulturową uprawia w nim zarówno rośliny ozdobne, jak i zioła, warzywa itp. Amatorsko interesuje się architekturą, ogrodnictwem, ornitologią, sportem, filmem. Uwielbia podróżować, poznawać nowych ludzi i miejsca. Jeżeli potrzebuje wypocząć, najchętniej wyjeżdża nad morze, poza sezonem wakacyjnym.
Komentarze

Gość Magda
27-03-2018 10:28
Witam, Piękny dom i śliczne wykończenie. Czy jest możliwość uzyskania kontaktu mailowego do właścicieli?
Wiecej na Forum BudujemyDom.pl
Najnowsze artykuły
Czytaj tak, jak lubisz
W wersji cyfrowej lub papierowej
Moduł czytaj tak jak lubisz