Ekonomiczny dom z bogatym programem funkcjonalnym! Interesujący projekt w ofercie ARCHON+

Ekonomiczny dom z bogatym programem funkcjonalnym! Interesujący projekt w ofercie ARCHON+

"Dom w naradkach (G2)" to jedna z nowości w kolekcji ARCHON+, którą polecamy uwadze Inwestorów, poszukujących projektu, łączącego ekonomikę realizacji z efektowną, nowoczesną estetyką i komfortem, jaki gwarantuje przestronne wnętrze z bogatym, optymalnie skonfigurowanym programem funkcjonalnym.

Piękno prostej bryły i nowoczesny charakter domu podkreśla kompozycja elewacji. Architekci zadbali o odpowiedni dobór detali oraz materiałów wykończeniowych. "Dom w naradkach (G2)" bardzo atrakcyjnie prezentuje się w oprawie z jasnego tynku, który znakomicie współgra z grafitowymi akcentami oraz drewnianą okładziną. Z całością dobrze koresponduje antracytowa dachówka i odpowiednio dopasowana tonacja stolarki. Przewidziany w projekcie obszerny, dwustanowiskowy garaż wysunięto z bryły budynku, a przedłużenie jego płyty stworzyło nad wejściem głównym nowoczesne zadaszenie. Wspaniale prezentuje się również strefa tarasowa z efektowną pergolą, będąca atrakcyjnym miejscem relaksu na świeżym powietrzu.

Dom w naradkach (G2) - wizualizacja projektu

  • powierzchnia
    domu - 148,21 m2
    garażu - 35,88 m2
    kotłowni - 5,48 m2
  • minimalne wymiary działki 21 x 20,4 m
  • program użytkowy: 6 pokoi, 1 kuchnia, 2 łazienki, pralnia, 2 garderoby, kominek, garaż, kotłownia

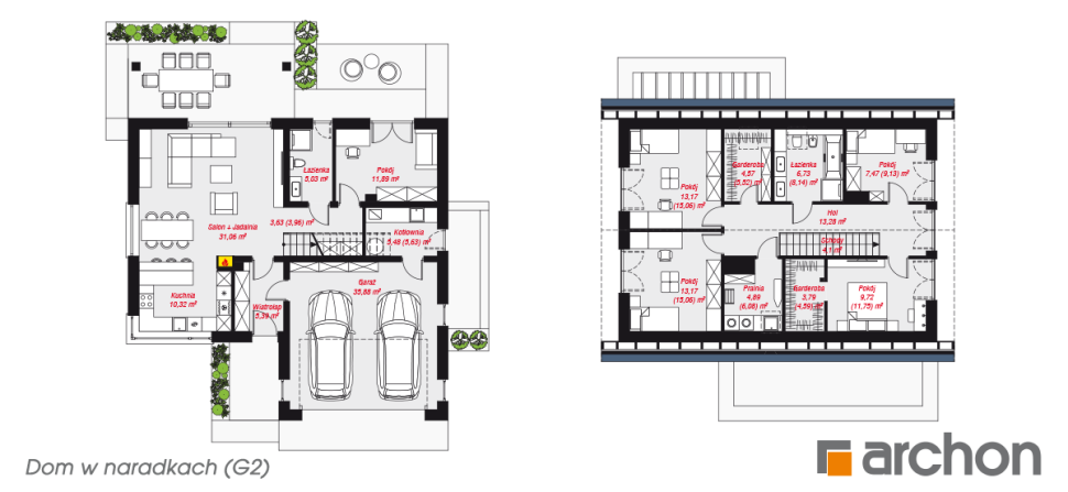
Dom w naradkach (G2) - rzut parteru i rzut poddasza

Na parterze mieszkańcy mają do dyspozycji wygodną przestrzeń dzienną. Zaproponowana aranżacja podkreśla spójny charakter otwartego wnętrza, a jednocześnie zachowuje odrębność poszczególnych części, ze względu na ich funkcje. Duże przeszklenia wpuszczają mnóstwo naturalnego światła i pozwalają w szerokim kadrze podziwiać zieleń ogrodu.

Dom w naradkach (G2) - wizualizacja salonu

Głównym meblem w salonie jest narożna sofa, jej grafitowy kolor pięknie współgra z pozostałymi elementami wyposażenia. Jedną ze ścian wyłożono drewnem, które dodaje wnętrzu ciepła i przytulności. Zabudowa w salonie to doskonałe miejsce na ulubione książki oraz dodatki dekoracyjne. Przewidziano w niej także praktyczne, zamykane szafki.

Dom w naradkach (G2) - wizualizacja kuchni z jadalnią

Z jadalnią sąsiaduje kuchnia, której granicę wizualnie rysuje półwysep, oferujący dodatkowe miejsce do jedzenia oraz przyrządzania posiłków. Efektownie prezentuje się zabudowa kuchenna, jej kolorystyka nawiązuje do innych elementów wyposażenie strefy dziennej i pięknie kontrastuje z bielą ścian. Dolne szafki wykończono drewnianym fornirem. Duże, narożne okno zapewnia doskonałe doświetlenie całej kuchni i podnosi komfort pracy.

Program parteru uzupełnia gabinet, posiadający bezpośrednie wyjście na zewnątrz, podobnie jak znajdująca się tuż obok niego łazienka.

Ozdobą wnętrza są jednobiegowe schody, prowadzące na pięknie doświetlony hol, zaprojektowany w środkowej części poddasza. Prywatna przestrzeń "Domu w naradkach (G2)" obejmuje cztery wygodne pokoje. Mieści się tutaj sypialnia rodziców z pojemną garderobą. Idealne warunki do nauki oraz wypoczynku oferują trzy pokoje dzieci, przewidziano w nich miejsce na wygodne łóżka, biurka, a także szafy ubraniowe. Ponadto, na poddaszu znajduje się duża łazienka, wspólna garderoba oraz pralnia.

Dom w naradkach (G2) - wizualizacja łazienki

Wielkość łazienki pozwala zastosować bogate wyposażenie, obejmujące zarówno wannę, jak i prysznic, a także praktyczny w codziennym użytkowaniu zestaw umywalek. Duże lustro optycznie dodaje przestronności.

Więcej informacji o projekcie na www.archon.pl

Komentarze

retrofood
30-12-2021 22:45
14 minut temu, Gość Marek napisał: Witam, poproszę o taki projekt ale z jednostanowiskowym garażem.     Przedpłata, 5k PLN.
Gość Marek
30-12-2021 22:30
Witam, poproszę o taki projekt ale z jednostanowiskowym garażem. Pozdrawiam.
Wiecej na Forum BudujemyDom.pl
Najnowsze artykuły
Czytaj tak, jak lubisz
W wersji cyfrowej lub papierowej
Moduł czytaj tak jak lubisz