Najpopularniejsze systemy kanałów wentylacji mechanicznej opierają się na elastycznych kanałach polietylenowych lub sztywnych kanałach stalowych. Pierwsze rozwiązanie można stosować zarówno na stropie (w warstwie styropianu akustycznego) jak i pod stropem (w przestrzeni instalacyjnej pomiędzy konstrukcją stropu a sufitem podwieszanym). Drugie rozwiązanie ze względu na duże przekroje kanałów stalowych najczęściej wykonywane jest pod stropem. Oba systemy cechują się tym, że trzeba uwzględnić dodatkową przestrzeń na prowadzenie instalacji.
W przypadku kiedy decydujemy się na instalacje wentylacji mechanicznej i zależy nam na zmniejszeniu wysokości budynku lub pomieszczenia o kilka centymetrów, można zastosować strop sprężony gęstożebrowy RECTOR, dzięki któremu możemy część instalacji ukryć w grubości stropu.
Stropy RECTOR są belkowo-pustakowymi, prefabrykowanymi stropami sprężonymi. Zastosowanie belki sprężonej pozwala uzyskać stropy o rozpiętości nawet do 9,9 m a szeroka gama wypełnień dostosowana jest do grubości stropu. Na wysokość stropu wpływ ma projektowana rozpiętość oraz projektowane obciążenia jakie będzie musiał przenieść strop i wynoszą od 16 cm do 34 cm. W zależności od zastosowanego wypełnienia RECTOBETON (wypełnienie - pustak betonowy) lub strop RECTOLIGHT (wypełnienie - panele drewnopochodne).
• Montaż instalacji w trakcie wykonywania stropu
• Możliwość tynkowania stropu
• W przypadku awarii, utrudniony dostęp do kanałów, które znajdują się w konstrukcji stropu
• Kanały poprzeczne do żeber prowadzone są pod stropem
Systemy stropowe RECTOR doskonale sprawdzają się zarówno w budownictwie nowym jak i podczas wymiany stropów w budynkach istniejących. Długość belek może dochodzić do 10 m.
Jeżeli na wentylację mechaniczną zdecydujemy się na jeszcze na etapie projektu, możemy wybrać takie rozwiązania, które ułatwią nam rozprowadzenie instalacji. Zarówno w przypadku stropu RECTOBETON jak i RECTOLIGHT, możliwe jest częściowe ukrycie instalacji montowanych równolegle do żeber nośnych stropu.
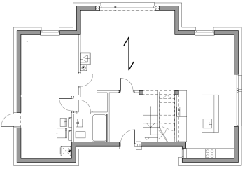
Przykład rozwiązania stropów RECTOR bez ścian konstrukcyjnych wewnątrz budynku:

• Kanały równoległe do żeber (w grubości stropu) prowadzone do pokoju, salonu oraz jadalni
STROPY RECTOR
• System występuje najczęściej wraz z sufitami podwieszanymi i umożliwia ukrycie części instalacji w grubości stropu,
• Lekkie i łatwe w docinaniu panele
ZALETY STROPÓW GĘSTOŻEBROWYCH SPRĘŻONYCH:
- Szybki i łatwy montaż bez potrzeby stosowania ciężkiego sprzętu,
- Praktycznie całkowita eliminacja szalunków stropowych,
- Brak pracochłonnych żeber rozdzielczych,
- Mniejsze ugięcia, brak efektu "klawiszowania" stropu,
- Oszczędności związane z pracami zbrojarskimi,
- Mniejsze zużycie betonu i stali na budowie,
- O 60% mniej stempli w porównaniu do tradycyjnego stropu,
- Możliwość uzupełnienia systemu o prefabrykowane podciągi sprężone,
- Towar dostępny od ręki,
- Technologia dobrze znana wykonawcom,
- Wsparcie techniczne na każdym etapie budowy.
źródło i zdjęcia: Rector