Beton architektoniczny we współczesnym budownictwie

Beton architektoniczny, nazywany betonem licowym, eksponowanym, strukturalnym czy elewacyjnym, posiada właściwości zwykłego betonu, ale wyróżnia się wieloma walorami estetycznymi. Jego produkcja wymaga odpowiedniego przygotowania oraz wykorzystania wysokiej jakości materiałów budowlanych. Jest to materiał, który służy również między innymi do budowania mniej lub bardziej złożonych konstrukcji schodów.

Beton architektoniczny we współczesnym budownictwie
Schöck Sp. z o. o. Biuro handlowe Warszawa Rozwiązania do izolacji termicznej i akustycznej dla budownictwa wielorodzinnego
Dane kontaktowe:
22 533 19 33
Burakowska 14 01-066 Warszawa, kampus biurowy FOREST

PokażUkryj szczegółowe informacje o firmie

Beton architektoniczny jest bardzo chętnie wykorzystywany we współczesnym budownictwie. Jest materiałem plastycznym, więc przy zastosowaniu właściwych systemów szalunkowych umożliwia tworzenie różnorodnych powierzchni i kształtów. Sam wygląd i tekstura betonu architektonicznego mogą być różne - zależne jest to od rodzaju cementu, zastosowanego kruszywa czy późniejszej obróbki powierzchni.

Schody z betonu architektonicznego
Schody z betonu architektonicznego

Projektanci decydują się na realizację coraz odważniejszych projektów ze względu na zmieniające się trendy w kształtowaniu architektury w Polsce i na świecie. Te działania zmusiły do stworzenia przepisów, które opisują normy i wymagania dotyczące technologii wykonywania elementów konstrukcyjnych z betonu.

W Niemczech wymagania dotyczące obróbki betonu zawarte są w opublikowanym w 2015 roku „Merkblatt Sichtbeton”. Wyróżnia on cztery klasy betonu eksponowanego:

  • SB 1: niskie wymagania: piwnice, garaże, obszary o zastosowaniu handlowym
  • SB 2: wymagania standardowe: klatki schodowe, drogi ewakuacyjne, obiekty przemysłowe
  • SB 3: wymagania specjalne: elewacje, elementy ekspozycyjne w pomieszczeniach
  • SB 4: szczególnie wysokie wymagania: hole, stropy, elementy przestrzenne, filary, szczególne ciągi komunikacyjne

W Polsce klasy betonu opisuje norma PN-EN 13670:2011, a jej oznaczenia od B1 do B4 są odpowiednikami niemieckich wytycznych.

Schody z betonu architektonicznego

Od niepamiętnych czasów schody odgrywały ważną rolę w architekturze. W okresie renesansu i baroku schody - z powodu swojego położenia przeważnie w samym centrum budynku - miały charakter reprezentacyjny. Schody spiralne we francuskim zamku Rochefoucauld zaprojektował sam Leonardo da Vinci. Ciekawostką konstrukcyjną jest to, że dwóch przechodniów może się widzieć, ale nie może się spotkać na tych słynnych schodach.

Schody spiralne we francuskim zamku Rochefoucauld
Schody spiralne we francuskim zamku Rochefoucauld

Obecnie również schody fascynują swoją wyjątkowością i nierzadko są wykorzystywane w budownictwie jako ważny element projektu. Widać to w przypadku nowoczesnych, minimalistycznych schodów wykonanych z betonu.

W przypadku betonu wykorzystywanego na klatce schodowej często stosuje się elementy prefabrykowane. Trzeba zachować szczególną ostrożność, aby osiągnąć i utrzymać wysoką jakość powierzchni takiej konstrukcji.

Dla dobrej akustyki

Schody z betonu architektonicznego znajdują się w wielu budynkach z dwóch względów – pierwszym są możliwości projektowe materiału, a drugim - duża wytrzymałość klatek schodowych w budynkach wielorodzinnych i komercyjnych. Bardzo ważna jest tu izolacja akustyczna klatek schodowych. Odgłosy docierające do mieszkań z klatek schodowych mogą być bardzo uciążliwe dla mieszkańców, więc trzeba wziąć ten aspekt pod uwagę.

Chcąc zapewnić optymalne wytłumienie dźwięków uderzeniowych, należy uwzględnić wszystkie połączenia na klatce schodowej.  Firma Schöck, wiodący producent rozwiązań do izolacji termicznej i akustycznej, stworzyła system Tronsole, którego idealnie dopasowane warianty gwarantują efektywną izolację akustyczną. Schody wykonane z betonu architektonicznego muszą posiadać ukrytą izolację, która nie zaburzy aspektów wizualnych projektu.

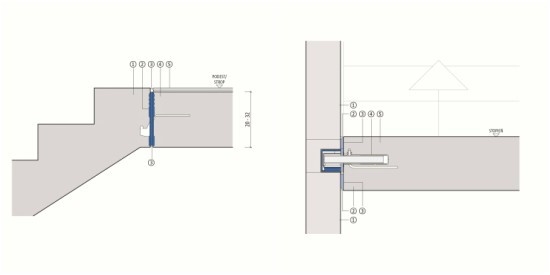
Izolacja akustyczna schodów

Elementem służącym do akustycznego oddzielania spocznika (monolitycznego lub prefabrykowanego) od ścian klatki schodowej jest Schöck Tronsole typu Z, który sprawia, że nie trzeba wykonywać podłogi pływającej na spoczniku pośrednim. Dzięki jego zastosowaniu proces budowy zostaje zoptymalizowany, a spocznik pośredni może być wykonany w technologii płyty filigran. Schöck Tronsole typu Z może być stosowany zarówno przy spocznikach monolitycznych jak również w całości prefabrykowanych. Przy spocznikach monolitycznych element ścienny Tronsole stosuje się jako szalunek tracony.

Izolacja akustyczna schodów

Przy spocznikach w pełni prefabrykowanych konsola spocznika jest wykonywana o takich wymiarach, aby po związaniu betonu mogła być umieszczona w elemencie ściennym Tronsole. Natomiast element Schöck Tronsole typu F umożliwia wykonanie połączenia stropu i biegu.

W zależności od istniejących wymogów konstrukcyjnych, dzięki zastosowaniu odpowiednich elementów Schöck Tronsole można stworzyć odpowiednią izolację akustyczną. Montaż łączników Tronsole pozwala na wykonanie konstrukcji bez mostków akustycznych na wszystkich etapach budowy i wykończenia budynku.

źródło i zdjęcia: Schöck