Promocja na budowę domu wg projektu SMALL

Dom SMALL został zaprojektowany z myślą o funkcjonalnym i niedrogim domu. Dzięki swojej przystępnej cenie jest świetną alternatywą dla mieszkania w bloku.

Promocja na budowę domu wg projektu SMALL
WOLF Haus Domy drewniane prefabrykowane
Dane kontaktowe:
32 605 37 00
Budowlana 17 41-100 Siemianowice Śląskie

PokażUkryj szczegółowe informacje o firmie

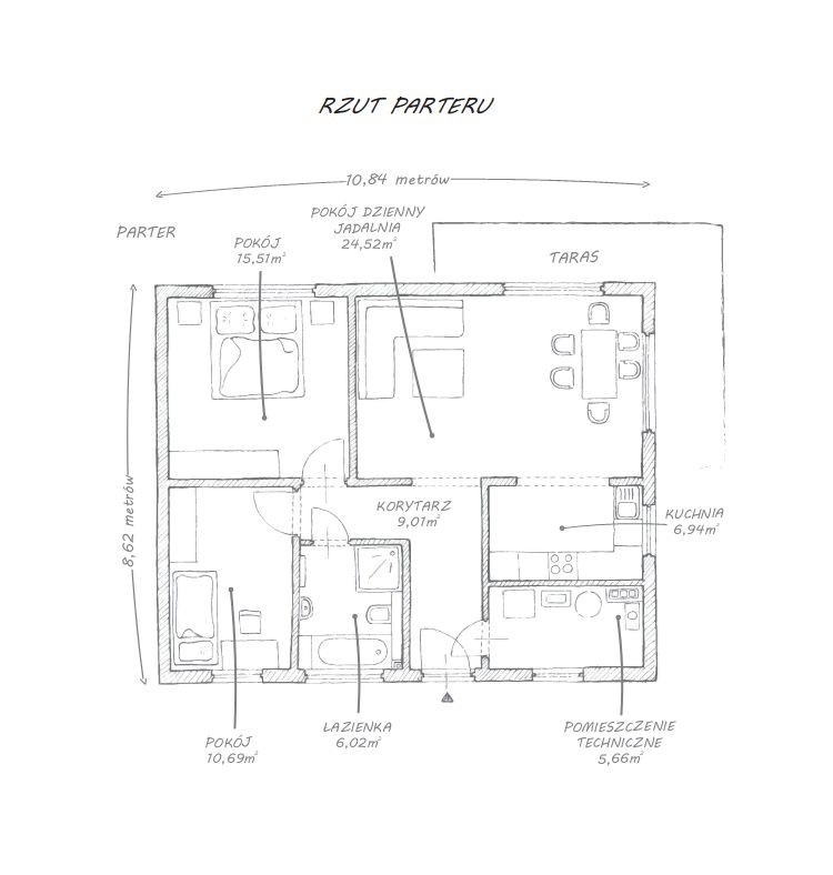
SMALL to dwa pokoje, salon z jadalnią, otwarta kuchnia oraz łazienka, w której jest miejsce na prysznic wannę i toaletę. Słoneczny taras zapewnia odpoczynek dla całej rodziny.

Głównym atutem domu SMALL są duże okna wpuszczające do wnętrza dużo dziennego światła. Dom w prostej bryle i szybki w budowie, a przede wszystkim jest ekonomiczny w eksploatacji.

Teraz WOLF Haus oferuje dom wg projektu SMALL w atrakcyjnej promocyjnej cenie. Oferta jest ważna do 10 maja 2020 roku.

  Rzut domu SMALL

Zakres dostawy domu - stan deweloperski - cena 185 000,00 zł brutto

  • Ściany zewnętrzne THERMOWAND, U=0,16 W/m2K.
  • Ściany wewnętrzne.
  • Wewnątrz wykończenie płytami gipsowo - kartonowymi.
  • Konstrukcja dachu: wiązar nieużytkowy.
  • Pokrycie dachu: dachówka cementowa BRASS Celtycka.
  • Drewniana podbitka dachu oraz zadaszenia, podcienie i słupy zewnętrze.
  • Rynny i obróbki blacharskie Galeco PCV.
  • Docieplenie poddasza/stropu wełną mineralną.
  • Okna PVC firmy OKNOPOL KOMMERLING 76MD - kolor biały - ciepły montaż stolarki.
  • Drzwi wejściowe Hörmann - TPS 010 kolor biały - ciepły montaż stolarki.
  • Parapety zewnętrzne aluminiowe.
  • Parapety wewnętrzne z kamienia sztucznego Helopal.
  • Elewacja: tynk akrylowy STO.
  • Peszle pod instalację elektryczną.
  • Transport, dźwig i montaż prefabrykatów.
  • Rusztowanie.
  • WC + kontener na odpady budowlane.
  • Adaptacja projektu do pozwolenia na budowę.

STAN DEWELOPERSKI z instalacjami - cena 267 500,00 zł brutto

  • Instalacja c.o. - kocioł kondensacyjny Buderus GB 072, instalacja ogrzewania grzejnikowego (grzejniki drabinkowe z grzałką elektrycznąw łazienkach).
  • Instalacja wod.- kan. (bez białego montażu).
  • Wentylacja mechaniczna z rekuperacją - centrala wentylacyjna PROVENT.
  • Instalacja elektryczna - tablica, kompletne okablowanie punktów elektrycznych (bez białego montażu).
  • Wylewka betonowa z izolacją poziomą.
  • Próba szczelności obiektu (Retrotec Blower Door Test).

źródło i zdjęcia: WOLF System