Możliwości projektanta wnętrz i zakres prac

Możliwości projektanta wnętrz i zakres prac

Projektant wnętrz może nam zaproponować cztery możliwości aranżacji wnętrz: układ funkcjonalny, koncepcję, projekt wykonawczy oraz inwestora zastępczego. Jaki jest zakres prac dla każdej z tych opcji?

Zanim zdecydujemy się na współpracę, warto zapoznać się z kilkoma zasadami, które właściwie obowiązują w całej branży. Pierwsza i jedna z najważniejszych, patrząc ze strony inwestora, dotyczy wyceny prac. Najczęściej wpływają na nią dwa główne czynniki: powierzchnia, którą ma objąć projekt, oraz zakres prac. Z reguły oferowane są trzy poziomy dokładności.

Układ funkcjonalny – czyli analiza możliwości organizacji wnętrza.

Jest to usługa najbardziej podstawowa, której efektem jest najczęściej kilka propozycji układu mebli wraz z analizą i komentarzem dotyczącym sposobu funkcjonowania przestrzeni w danym ustawieniu. Decydując się na ten zakres działań, nie powinniśmy się więc spodziewać kolorowych, fotorealistycznych wizualizacji ani zaawansowanych projektów technicznych. Efektem analizy funkcjonalnej będzie natomiast informacja, jak zorganizować przestrzeń, aby dało to możliwie najlepsze i dostosowane do naszego trybu życia skutki.

 

Warto pamiętać, że analiza funkcjonalna nie jest jedynie usługą dotyczącą projektowania wnętrz posiadanego już przez nas domu. Można (i warto) z niej skorzystać, na przykład wybierając projekt typowy. Pozwoli nam to zobaczyć wszystkie wady i zalety wnętrza (jak choćby to, czy w jadalni da się ustawić stół na 8 osób, a wymarzone łóżko przejdzie przez drzwi w sypialni albo da się wnieść na poddasze) i podjąć znacznie bardziej świadomą decyzję. Można więc powiedzieć, że pierwszy etap projektowania wnętrz może być również traktowany jako usługa konsultingowa.

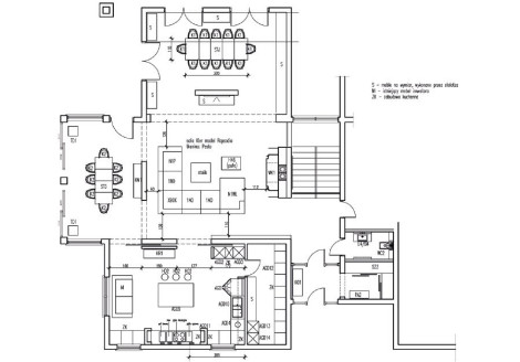
Przykład analizy funkcjonalnej, uwzględniającej ustawienie ścianek działowych
Przykład analizy funkcjonalnej, uwzględniającej ustawienie ścianek działowych

Koncepcja – czyli opisana wcześniej, opracowana i zaakceptowana analiza układu funkcjonalnego, ubrana w wizję estetyczną.

Na tym etapie pojawiają się wizualizacje wyglądu wybranego układu. Określany jest styl i kolorystyka wnętrza, dobierane meble i oświetlenie. Ustalane są także materiały i faktury powierzchni. Po zakończeniu tego etapu, będziemy już dokładnie wiedzieć, jak będą wyglądać nasze łazienki, kuchnia czy salon. Na podstawie koncepcji nie da się ich jednak precyzyjnie wykonać – a ponieważ wiadomo, co tkwi w szczegółach – potrzebny jest kolejny etap projektowania.

Rysunek wykonawczy rozmieszczenia mebli. Widoczne odniesienia do zestawienia mebli, a także podział na meble powstające na zamówienie wg projektu oraz posiadane już przez inwestora
Jedna z wizualizacji do projektu koncepcyjnego jadalni
Jedna z wizualizacji do projektu koncepcyjnego jadalni Wnętrze jadalni wykonane wg projektu

Projekt wykonawczy – czyli ubranie wizji z poprzednich etapów w realny kształt precyzyjnych rysunków, zrozumiałych dla wykonawców.

Do jego sporządzenia potrzebna jest dokładna inwentaryzacja wnętrza. Na tym etapie powstają również między innymi szczegółowe projekty mebli, oświetlenia, dobierane są faktury materiałów i rozmieszczane kontakty. Efekt projektowania jest w tym wypadku najmniej spektakularny – są to czarno-białe rysunki pokryte gęstą plątaniną kresek o różnych grubościach, opisów i linii wymiarowych.

 

Jednak w przeciwieństwie do koncepcji – projekt wykonawczy jest przeznaczony nie tyle dla klienta, co dla wykonawcy. Najważniejszą natomiast dla inwestora częścią tego opracowania są specyfikacje, czyli zestawienia ilościowe wszystkich elementów użytych w projekcie wraz z określeniem ich lokalizacji (pomieszczeń, w których docelowo mają się znaleźć) i wszystkich istotnych cech. W wypadku zestawienia mebli, będzie to na przykład kolor i rodzaj materiału pokrycia. Mogą się tam znajdować również adresy (fizyczne lub internetowe) sklepów, w których elementy te można zamówić.

Plansza projektu wykonawczego. Widoczne szczegółowe opisanie ściany, wizualizacja i propozycje rozwiązań meblarskich
Wizualizacja koncepcyjna kuchni
Wizualizacja koncepcyjna kuchni Kuchnia w trakcie realizacji

Inwestor zastępczy – jest to usługa, która zdarza się w ofertach architektów wnętrz, nie jest jednak oczywista.

Polega ona na przejęciu przez architekta roli inwestora na budowie. Zatrudniony w ten sposób projektant wnętrz będzie negocjował z wykonawcami i kontrolował ich pracę, kupował niezbędne elementy i nadzorował ich montaż.

 

Należy jednak pamiętać, że poziom szczegółowości opracowania można dopasować do potrzeb. Znaczy to, że nie musimy decydować się na projekt wykonawczy wnętrz do całego domu. Najczęściej zresztą dokładnie tak to wygląda – do etapu projektu wykonawczego doprowadzane są zwykle kuchnie i łazienki, jako elementy najtrudniejsze wykonawczo, a także reprezentacyjne części domu, jak salon, jadalnia, przedpokój. Pozostałe pomieszczenia zostają opracowane wyłącznie koncepcyjnie, do etapu analizy funkcjonalnej.

 

Należy się jednak liczyć z faktem, że jeśli zlecenie na projekt wykonawczy nie dotyczy całego mieszkania, cena za metr kwadratowy może dość znacznie wzrosnąć (nawet o 30%). Koszt projektu zależy także od odległości inwestycji od siedziby architekta – chyba, że zdecydujemy się na pracę zdalną, wyłącznie na podstawie przesłanych planów i zdjęć. Taka praca ma jednak spore ograniczenia. Przede wszystkim nie może dotyczyć etapu wykonawczego. Siłą rzeczy jest również mniej precyzyjna. Poza tym – bez wizyty na budowie zdecydowanie trudniej jest wyczuć klimat miejsca, co z kolei może powodować, że projekt będzie mniej trafiony.

dr inż. architekt Piotr Kmiecik dr inż. architekt Piotr Kmiecik: Ukończył studia na Wydziale Architektury Politechniki Wrocławskiej w 2002 roku. Obronił doktorat z zakresu historii architektury i konserwacji zabytków. Projektuje domy jednorodzinne oraz duże centra handlowe i zespoły biurowe na terenie Polski i Federacji Rosyjskiej. Autor i współautor dwóch książek. Obecnie prowadzi własną pracownię projektową.

Współpraca: projektantka wnętrz mgr inż. arch. Ewa Słota
Zdjęcia i rysunki. essa-architektura.pl

Komentarze

Najnowsze artykuły
Czytaj tak, jak lubisz
W wersji cyfrowej lub papierowej
Moduł czytaj tak jak lubisz