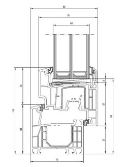
Nowy wariant skrzydła aluplast Ideal 4000 dla pakietów szybowych o szerokości 48 mm

System IDEAL  4000 mm łączy w sobie oryginalność formy ze skutecznością rozwiązań. Najlepszym tego potwierdzeniem jest nowy wariant skrzydła, który umożliwia stosowanie energooszczędnych pakietów szybowych o szerokości do 48 mm. Tym samym, w ramach tej najpopularniejszej serii profili, mamy możliwość zaoferowania bardzo energooszczędnego rozwiązania.

Nowy wariant skrzydła aluplast Ideal 4000 dla pakietów szybowych o szerokości 48 mm
aluplast Sp. z o.o. Systemy okienne z PVC
Dane kontaktowe:
61 654 34 00
Gołężycka 25 A 61-357 Poznań

PokażUkryj szczegółowe informacje o firmie

ALUPLAST IDEAL 4000 - więcej możliwości

Uzyskany w badaniach współczynnik przenikalności cieplnej profili o wartości do Uf=1,3 W/m2K w połączeniu z możliwością stosowania szerszych i cieplejszych pakietów szybowych o szerokości do 48 mm gwarantuje doskonałe parametry cieplne okna. Na przykład okno referencyjne o wymiarach 1230 x 1480 mm przy zastosowaniu pakietu szybowego o współczynniku Ug=0,5 W/m2K, z tzw. ciepłą ramką osiąga  współczynnik izolacyjności termicznej wynoszący Uw=0,85 W/m2K.

System Ideal 4000 - "Oczywiście umożliwienie poprawy właściwości cieplnych całej konstrukcji, poprzez poszerzenie wrębu szybowego, było podstawowym założeniem związanym z wprowadzeniem nowego wariantu skrzydła" - komentuje Marcin Szewczuk, Marketing Manager Aluplast sp. z o.o..

- "Niemniej ważny jest jednak również fakt, że wprowadzamy to rozwiązanie w ramach już istniejącego, wciąż bardzo popularnego systemu, poprzez wprowadzenie tylko jednego dodatkowego profilu skrzydła. Tym samym jest to krok w kierunku optymalizacji, zwiększenia efektywności i minimalizowania stanów magazynowych, jakie wiązałyby się w wprowadzeniem zupełnie nowego systemu. Dodatkowym atutem będzie również dostępność w ramach serii Ideal 4000 profili z antracytowym rdzeniem."

Oryginalne wzornictwo

Oryginalne i harmonijne wzornictwo, w połączeniu z dużym bogactwem rozwiązań systemowych, dają nieograniczone możliwości kreowania okien i podkreślenia przez to własnego stylu. Klasyczne, eleganckie linie w smukłych profilach o wyrazistych konturach, a przy tym nieco futurystyczna forma to propozycja dla osób szukających wyjątkowych możliwości kreacji swoich okien.

System Ideal 4000 jest uniwersalny w swoich zastosowaniach, świetnie  sprawdza  się  zarówno w nowoczesnej architekturze budownictwa jedno- i wielorodzinnego, jak i w przypadku renowacji. Dzięki szerokości profili wynoszącej zaledwie 114 mm zwiększamy powierzchnię przeszkleń i wpuszczamy do pomieszczeń jeszcze więcej światła.

Czysta elegancja w antracycie

Antracytowy profil Odpowiadając na trendy kolorystyczne wprowadzamy do oferty od II kwartału 2019 r. profile o antracytowym rdzeniu również w systemie Ideal 4000, co pozwoli na jeszcze lepsze dopasowanie okien do modnych i nowoczesnych aranżacji. Poprzez antracytowy rdzeń mamy możliwość, w przypadku okien dwustronnie okleinowanych, uzyskania jednolitej kolorystyki w całym przekroju profilu. Tym samym okna jeszcze lepiej wkomponowują się w nowoczesne aranżacje wnętrz i elewacji. Więcej informacji na stronie.

MULTIFALZ = MULTIFUNKCYJNOŚĆ

W najnowszym rozwiązaniu skrzydła została już zaimplementowana technologia multifalz, która dzięki nowej geometrii wrębu szybowego umożliwia nie tylko konwencjonalne szklenie, lecz także wklejanie szyb. Technologie te mogą być stosowane naprzemiennie lub łączone w zależności od potrzeb, np. możliwe jest poprawienie właściwości cieplnych konstrukcji poprzez wyeliminowanie wzmocnień stalowych lub też zastosowanie przy większych gabarytach okien, kolorach itp. zarówno zbrojenia wzmocnieniami stalowymi, jak i technologii wklejania szyb, co zwiększa sztywność konstrukcji.

źródło i zdjęcia: aluplast Sp. z o.o.